Building Summary

Data last updated on: 10/26/2025     Ownership current as of: 10/23/2025     Tax Year: 2025
REID 9768

PIN # 4665-01-1024

Location Address Property Description
1066 POCOSIN RD HAZELTON PROPERTY LO:2
   
Property Owner Owner's Mailing Address
RECIO, BELEN ONTIVEROS;LOREDO, SATURNINO DOMINGUEZ
1066 POCOSIN RD
WINTERVILLE NC 28590
Parcel
Buildings
Misc Improvements
Land
Deeds
Notes
Sales
Photos
Tax Bill
Map
Building Location Address
1066 POCOSIN RD
Building Description
54-MANUFHM
Card   of  1
Bldg Type 02-MOBILE-HOME-CONST
Units 1
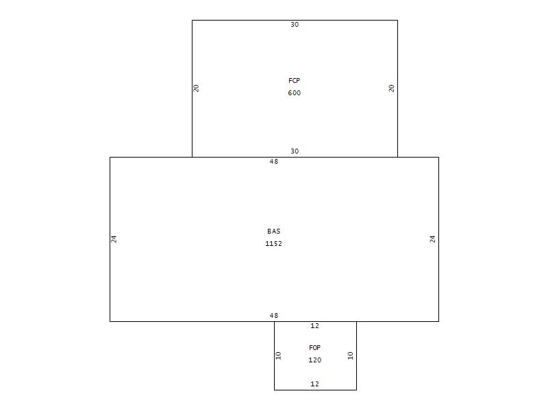
Living Area (SQFT) 1152
Number of Stories 1.00
Style 1.0-Story
Foundation CONTFOOT
Exterior Alum/Vinyl-Sid
Const Type Gable
Heating FORCED-AIR-DUCTED
Air Cond CENTRAL
Plumbing Baths (Full):   2
Baths (Half):   0
Extra Fixtures:   0
Total Plumbing Fixtures:   6 
Bedrooms 3
Main Body (SQFT) 1152
Year Built 1978
Additions 2
Effective Year 2010
Remodeled 0
Interior Adj.
Other Features
Building Total & Improvement Details

Grade C 100%
Percentage Complete 100
Total Adjusted Replacement Cost New $126,027
Physical Depreciation (% Bad) 0%
Depreciated Value $79,397
Economic Depreciation (% Bad) 0%
Functional Depreciation (% Bad) 0%
Total Depreciated Value $79,397
Market Area Factor 1.00
Building Value $79,397
Misc Improvements Value $1,700
Total Improvement Value $81,097

Assessed Land Value $34,500
   
Assessed Total Value $115,597



Addition Summary 
StoryTypeCodeArea
1.00 FINISHED CARPORT FCP 600
1.00 FINISHED OPEN PORCH FOP 120
 
Other Improvements 
UnitsDescriptionItemCodeYear% BadValue
12x16 DIMENSIONS STORAGE/SHOP AVERAGE 1901 80 1330
12x16 DIMENSIONS SHELTER AVERAGE 1901 80 370
 


Building Sketch
Photograph
Building Sketch Building Photo
(Click sketch for bigger image)