Building Summary

Data last updated on: 10/16/2025     Ownership current as of: 10/15/2025     Tax Year: 2025
REID 9391

PIN # 5621-51-7986

Location Address Property Description
5370 NC 102 E RES HADDOCK
   
Property Owner Owner's Mailing Address
HADDOCK, JUNE S
5370 NC 102 E
GRIMESLAND NC 27837
Parcel
Buildings
Misc Improvements
Land
Deeds
Notes
Sales
Photos
Tax Bill
Map
Building Location Address
5370 NC 102 E
Building Description
50-RURALHMST
Card   of  1
Bldg Type 01-SFR-CONST
Units 1
Living Area (SQFT) 2592
Number of Stories 1.00
Style 1.0-Story
Foundation CONTFOOT
Exterior BRICK/VINYL
Const Type Gable
Heating FORCED-AIR-DUCTED
Air Cond CENTRAL
Plumbing Baths (Full):   2
Baths (Half):   0
Extra Fixtures:   0
Total Plumbing Fixtures:   6 
Bedrooms 3
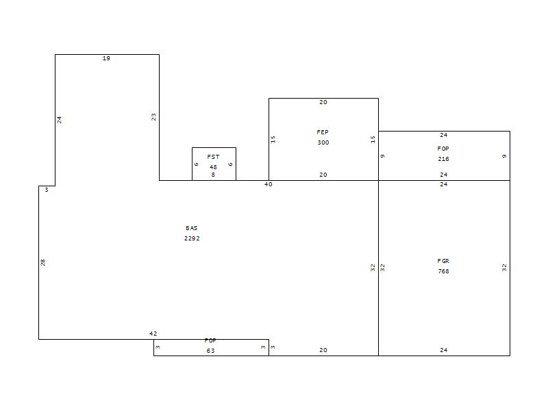
Main Body (SQFT) 2292
Year Built 1959
Additions 5
Effective Year 1990
Remodeled 0
Interior Adj.
Other Features
Building Total & Improvement Details

Grade C 100%
Percentage Complete 100
Total Adjusted Replacement Cost New $345,510
Physical Depreciation (% Bad) 0%
Depreciated Value $217,671
Economic Depreciation (% Bad) 0%
Functional Depreciation (% Bad) 0%
Total Depreciated Value $217,671
Market Area Factor 1.00
Building Value $217,671
Misc Improvements Value $8,850
Total Improvement Value $226,521

Assessed Land Value $20,000
   
Assessed Total Value $246,521



Addition Summary 
StoryTypeCodeArea
1.00 FINISHED ENCLOSED PORCH FEP 300
1.00 FINISHED STORAGE FST 48
1.00 FINISHED OPEN PORCH FOP 63
1.00 FINISHED GARAGE FGR 768
1.00 FINISHED OPEN PORCH FOP 216
 
Other Improvements 
UnitsDescriptionItemCodeYear% BadValue
10x10 DIMENSIONS STORAGE/SHOP FAIR 1959 80 420
16X22 DIMENSIONS STORAGE/SHOP AVERAGE 2012 31 8430
 


Building Sketch
Photograph
Building Sketch Building Photo
(Click sketch for bigger image)