Building Summary

Data last updated on: 10/18/2025     Ownership current as of: 10/17/2025     Tax Year: 2026
REID 90894

PIN # 4686-85-0101

Location Address Property Description
1815 E FIRE TOWER RD COVENTON DOWNE-SBDV301 LO:5 BL:G
   
Property Owner Owner's Mailing Address
PITT COUNTY ABC BOARD
PO BOX 30340
GREENVILLE NC 27833
Parcel
Buildings
Misc Improvements
Land
Deeds
Notes
Sales
Photos
Tax Bill
Map
Building Location Address
1815 E FIRE TOWER RD
Card   of  1        Section   of  1
Building Details

Building Name PITT COUNTY ABC STORE
Primary Occupancy Type 07-COMM-CONST
Primary Occupancy 10-COMM
Primary Class C
Primary Quality Avg
Year Built 2025
Effective Year 2025
Physical Depreciation (Rating) DEPRECIATION
Physical Depreciation (% Bad) 1.00%
Economic Depreciation (% Bad) 0%
Functional Depreciation (% Bad) 0%
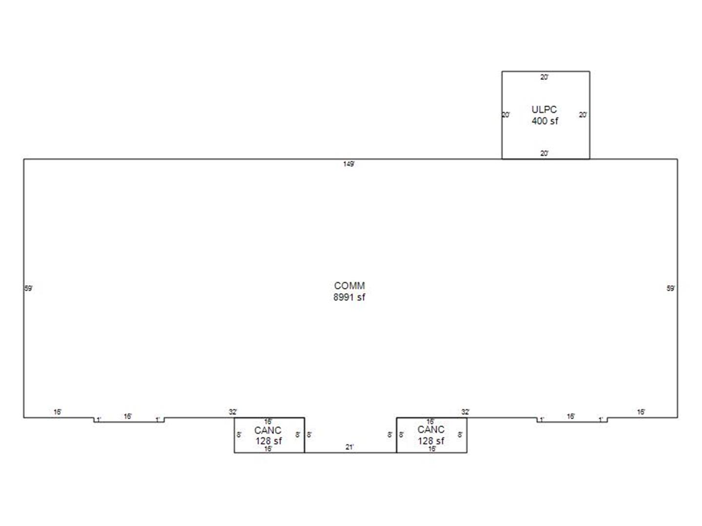
Gross Leasable Area (SQFT) 8991
Remodeled Year
Total Stories 1

Section Details

Occupancy Type 07-COMM-CONST


Air Conditioning PACKAGE ROOF TOP
Class C
EXTRA FIXTURES 4
NONE 0
Quality Avg
Foundation SPRDFOOT
Heat FORCED-AIR-DUCTED
Interior Finish DRYWALL/SHEETROCK
Occupancy 10-COMM
Exterior Walls STUCCO-ON-BLK
Depreciation 1%
Depreciation DEPRECIATION
Building Total & Improvement Details

Total Adjusted Replacement Cost New $729,037
Physical Depreciation (% Bad) 1.00%
Depreciated Value $721,747
Economic Depreciation (% Bad) 0%
Functional Depreciation (% Bad) 0%
Total Depreciated Value $721,747
Market Area Factor 1.00
Building Value $721,747
Misc Improvements Value
Total Improvement Value $721,747

Assessed Land Value $1,061,120
   
Assessed Total Value


Addition Summary 
StoryTypeCodeArea
1.00 CANOPY CANC 128
1.00 CANOPY CANC 128
1.00 UNCOVERED LOADING PLATFORM ULPC 400
 
Other Improvements 
 


Building Sketch
Photograph
Building Sketch Building Photo
(Click sketch for bigger image)