Building Summary

Data last updated on: 10/31/2025     Ownership current as of: 10/30/2025     Tax Year: 2026
REID 90727

PIN # 3699-04-3275

Location Address Property Description
7063 ALLEN GAY RD LINDA MOSELEY VINCENT, ET AL PROPERTY LO:2
   
Property Owner Owner's Mailing Address
GARDNER HOLDINGS & INVESTMENTS LLC
3981 DUNN RD
FOUNTAIN NC 27829
Parcel
Buildings
Misc Improvements
Land
Deeds
Notes
Sales
Photos
Tax Bill
Map
Building Location Address
7063 ALLEN GAY RD
Card   of  1        Section   of  1
Building Details

Building Name
Primary Occupancy Type 06-WHSE-CONST
Primary Occupancy 49-PREFWHSE
Primary Class C
Primary Quality Avg
Year Built 2025
Effective Year 2025
Physical Depreciation (Rating) DEPRECIATION
Physical Depreciation (% Bad) 1.00%
Economic Depreciation (% Bad) 0%
Functional Depreciation (% Bad) 0%
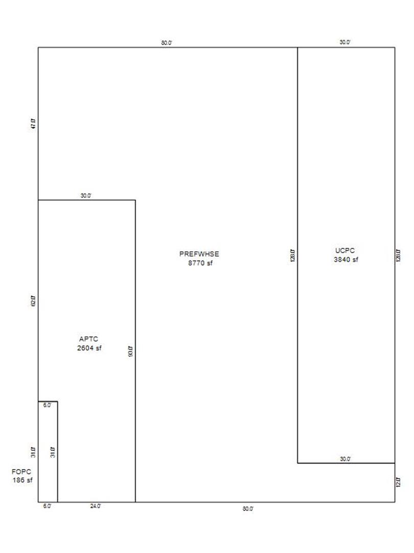
Gross Leasable Area (SQFT) 11374
Remodeled Year
Total Stories 1

Section Details

Occupancy Type 06-WHSE-CONST


Air Conditioning CENTRAL
EXTRA FIXTURES 0
NONE 0
Class C
Foundation SPRDFOOT
Heat HEAT-PUMP
Interior Finish DRYWALL/SHEETROCK
Interior Finish MINIMUM
Occupancy 49-PREFWHSE
Quality Avg
Exterior Walls STONE/VINYL
Depreciation 1%
Depreciation DEPRECIATION
Building Total & Improvement Details

Total Adjusted Replacement Cost New $853,866
Physical Depreciation (% Bad) 1.00%
Depreciated Value $845,327
Economic Depreciation (% Bad) 0%
Functional Depreciation (% Bad) 0%
Total Depreciated Value $845,327
Market Area Factor 1.00
Building Value $845,327
Misc Improvements Value
Total Improvement Value $845,327

Assessed Land Value $129,250
   
Assessed Total Value $974,577


Addition Summary 
StoryTypeCodeArea
1.00 APARTMENT APTC 2604
1.00 FINISHED OPEN PORCH FOPC 186
1.00 UNFINISHED CARPORT UCPC 3840
 
Other Improvements 
 


Building Sketch
Photograph
Building Sketch Building Photo
(Click sketch for bigger image)