Building Summary

Data last updated on: 10/17/2025     Ownership current as of: 10/17/2025     Tax Year: 2025
REID 90542

PIN # 4689-52-4678

Location Address Property Description
1950 N GREENE ST JEFFREYS BEER & WINE TR:2
   
Property Owner Owner's Mailing Address
RJTS PROPERTIES LLC
3231 NORTH WESLEYAN BOULEVARD
ROCKY MOUNT NC 27804
Parcel
Buildings
Misc Improvements
Land
Deeds
Notes
Sales
Photos
Tax Bill
Map
Building Location Address
1950 N GREENE ST
Card   of  1        Section   of  1
Building Details

Building Name
Primary Occupancy Type 06-WHSE-CONST
Primary Occupancy 40-INDUSTRIAL
Primary Class C
Primary Quality Avg
Year Built 1998
Effective Year 1998
Physical Depreciation (Rating) DEPRECIATION
Physical Depreciation (% Bad) 37.00%
Economic Depreciation (% Bad) 20.00%
Functional Depreciation (% Bad) 0%
Gross Leasable Area (SQFT) 73824
Remodeled Year
Total Stories 1

Section Details

Occupancy Type 06-WHSE-CONST


Air Conditioning none
EXTRA FIXTURES 24
Class C
Depreciation DEPRECIATION
Foundation SPRDFOOT
DIR VENT FIREPL 0
MASON FIREPL 0
Depreciation 37%
Heat NONE
Interior Finish MINIMUM
Occupancy 40-INDUSTRIAL
Quality Avg
Sprinkler SPRINK
Exterior Walls CONC-BLOCK
Building Total & Improvement Details

Total Adjusted Replacement Cost New $8,219,859
Physical Depreciation (% Bad) 37.00%
Depreciated Value $5,178,511
Economic Depreciation (% Bad) 20.00%
Functional Depreciation (% Bad) 0%
Total Depreciated Value $4,142,809
Market Area Factor 1.00
Building Value $4,142,809
Misc Improvements Value $172,340
Total Improvement Value $4,315,149

Assessed Land Value $468,270
   
Assessed Total Value $4,783,419


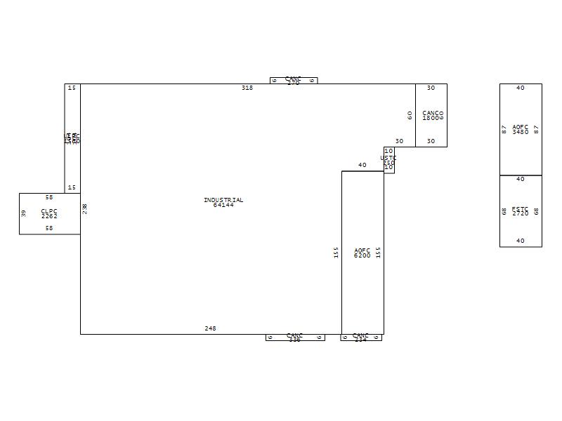
Addition Summary 
StoryTypeCodeArea
1.00 CANOPY CANC 270
1.00 UNCOVERED LOADING PLATFORM ULPC 1560
1.00 COVERED LOADING PLATFORM CLPC 2262
1.00 OFFICE, AVERAGE AOFC 6200
1.00 UNFINISHED STORAGE USTC 250
1.00 FINISHED STORAGE FSTC 2720
1.00 OFFICE, AVERAGE AOFC 3480
1.00 CANOPY CANC 336
1.00 CANOPY CANC 234
1.00 CANOPY CANC 1800
 
Other Improvements 
UnitsDescriptionItemCodeYear% BadValue
60450 UNITS PAVING ASPHALT 1999 70 72540
63200 UNITS PAVING CONCRETE 1999 70 75840
2420 UNITS FENCE CHAIN LINK 6 FOOT 1999 70 23960
 


Building Sketch
Photograph
Building Sketch Building Photo
(Click sketch for bigger image)