Building Summary

Data last updated on: 10/25/2025     Ownership current as of: 10/23/2025     Tax Year: 2025
REID 87395

PIN # 4696-21-1983

Location Address Property Description
1807 U2 FOX DEN WY GREYFOX TOWNHOMES TH6 PH:3 UN:2 BU:TH6
   
Property Owner Owner's Mailing Address
BASTIEN, DANIEL;BASTIEN, CAROL
3904 DUNHAGAN RD
GREENVILLE NC 27858
Parcel
Buildings
Misc Improvements
Land
Deeds
Notes
Sales
Photos
Tax Bill
Map
Building Location Address
1807 FOX DEN WY
Building Description
04-COND/TWN/DUP-SFR
Card   of  1
Bldg Type 03-MFR-CONST
Units 1
Living Area (SQFT) 1902
Number of Stories 1.80
Style Townhouse
Foundation SPRDFOOT
Exterior Alum/Vinyl-Sid
Const Type
Heating FORCED-AIR-DUCTED
Air Cond CENTRAL
Plumbing Baths (Full):   2
Baths (Half):   1
Extra Fixtures:   0
Total Plumbing Fixtures:   8 
Bedrooms 3
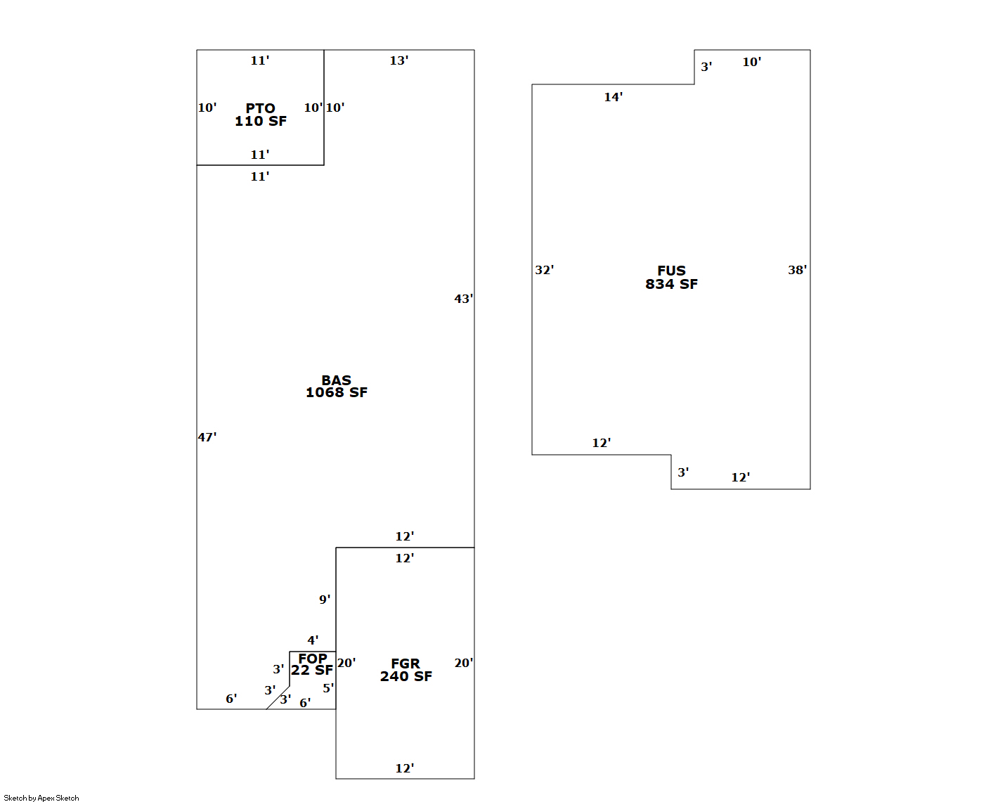
Main Body (SQFT) 1068
Year Built 2020
Additions 4
Effective Year 2020
Remodeled 0
Interior Adj.
Other Features
Building Total & Improvement Details

Grade C +3 103.68%
Percentage Complete 100
Total Adjusted Replacement Cost New $227,411
Physical Depreciation (% Bad) 0%
Depreciated Value $220,589
Economic Depreciation (% Bad) 0%
Functional Depreciation (% Bad) 0%
Total Depreciated Value $220,589
Market Area Factor 1.00
Building Value $220,589
Misc Improvements Value
Total Improvement Value $220,589

Assessed Land Value $30,000
   
Assessed Total Value $250,589



Addition Summary 
StoryTypeCodeArea
1.00 PATIO PTO 110
1.00 FINISHED OPEN PORCH FOP 22
1.00 FINISHED GARAGE FGR 240
1.00 FINISHED UPPER STORY FUS 834
 
Other Improvements 
 


Building Sketch
Photograph
Building Sketch Building Photo
(Click sketch for bigger image)