Building Summary

Data last updated on: 10/26/2025     Ownership current as of: 10/23/2025     Tax Year: 2025
REID 85748

PIN # 4665-61-1189

Location Address Property Description
2757 CHALET CI VILLA GRANDE LO:70 PH:1 SE:B
   
Property Owner Owner's Mailing Address
WILLIAMS, STEVEN;WILLIAMS, DENEEKA
2757 CHALET CI
WINTERVILLE NC 28590
Parcel
Buildings
Misc Improvements
Land
Deeds
Notes
Sales
Photos
Tax Bill
Map
Building Location Address
2757 CHALET CI
Building Description
01-SFR
Card   of  1
Bldg Type 01-SFR-CONST
Units 1
Living Area (SQFT) 2245
Number of Stories 2.35
Style Conventional
Foundation SPRDFOOT
Exterior Alum/Vinyl-Sid
Const Type
Heating HEAT-PUMP
Air Cond CENTRAL
Plumbing Baths (Full):   2
Baths (Half):   1
Extra Fixtures:   0
Total Plumbing Fixtures:   8 
Bedrooms 4
Main Body (SQFT) 964
Year Built 2019
Additions 4
Effective Year 2019
Remodeled 0
Interior Adj.
Other Features
Building Total & Improvement Details

Grade C+5 107.35%
Percentage Complete 100
Total Adjusted Replacement Cost New $314,528
Physical Depreciation (% Bad) 0%
Depreciated Value $301,947
Economic Depreciation (% Bad) 0%
Functional Depreciation (% Bad) 0%
Total Depreciated Value $301,947
Market Area Factor 1.00
Building Value $301,947
Misc Improvements Value
Total Improvement Value $301,947

Assessed Land Value $34,000
   
Assessed Total Value $335,947



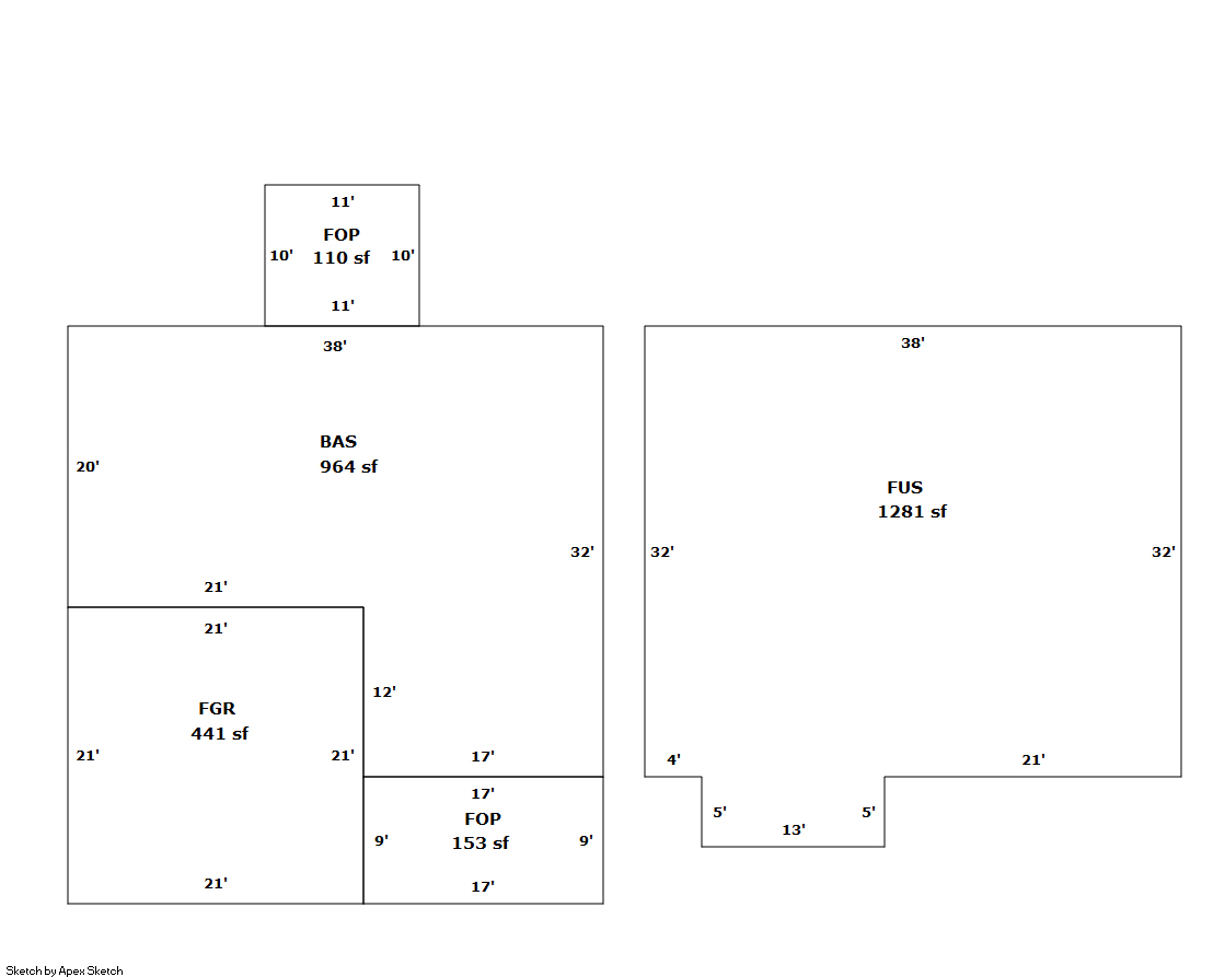
Addition Summary 
StoryTypeCodeArea
1.00 FINISHED GARAGE FGR 441
1.00 FINISHED OPEN PORCH FOP 110
1.00 FINISHED OPEN PORCH FOP 153
1.00 FINISHED UPPER STORY FUS 1281
 
Other Improvements 
 


Building Sketch
Photograph
Building Sketch Building Photo
(Click sketch for bigger image)