Building Summary

Data last updated on: 10/25/2025     Ownership current as of: 10/23/2025     Tax Year: 2025
REID 84951

PIN # 4696-22-2045

Location Address Property Description
1808 1 FOX DEN WY GREYFOX RUN PH:1 UN:1
   
Property Owner Owner's Mailing Address
BARDWELL, LESLIE ANN
1808 FOX DEN WY UNIT 1
GREENVILLE NC 27858
Parcel
Buildings
Misc Improvements
Land
Deeds
Notes
Sales
Photos
Tax Bill
Map
Building Location Address
1808 FOX DEN WY
Building Description
04-COND/TWN/DUP-SFR
Card   of  1
Bldg Type 03-MFR-CONST
Units 1
Living Area (SQFT) 2172
Number of Stories 2.00
Style Townhouse
Foundation SPRDFOOT
Exterior Alum/Vinyl-Sid
Const Type
Heating HEAT-PUMP
Air Cond CENTRAL
Plumbing Baths (Full):   2
Baths (Half):   1
Extra Fixtures:   0
Total Plumbing Fixtures:   8 
Bedrooms 0
Main Body (SQFT) 1086
Year Built 2018
Additions 4
Effective Year 2018
Remodeled 0
Interior Adj.
Other Features
Building Total & Improvement Details

Grade C +3 103.68%
Percentage Complete 100
Total Adjusted Replacement Cost New $248,475
Physical Depreciation (% Bad) 0%
Depreciated Value $236,051
Economic Depreciation (% Bad) 0%
Functional Depreciation (% Bad) 0%
Total Depreciated Value $236,051
Market Area Factor 1.00
Building Value $236,051
Misc Improvements Value
Total Improvement Value $236,051

Assessed Land Value $30,000
   
Assessed Total Value $266,051



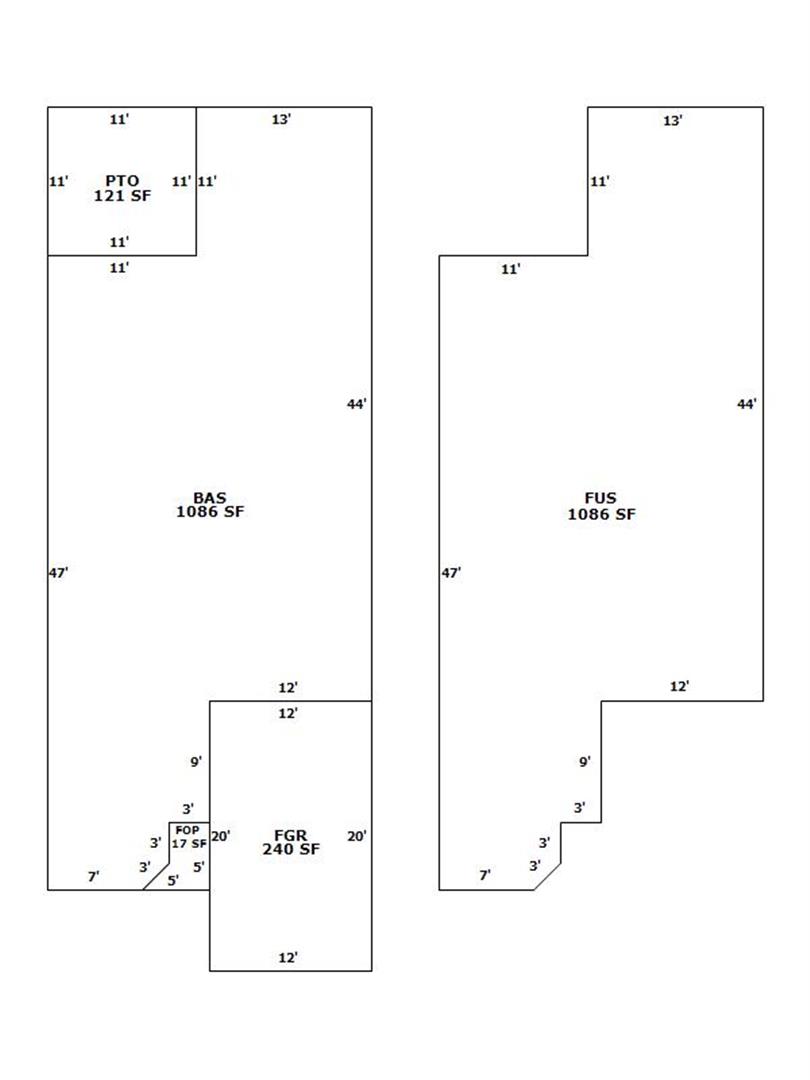
Addition Summary 
StoryTypeCodeArea
1.00 PATIO PTO 121
1.00 FINISHED OPEN PORCH FOP 17
1.00 FINISHED GARAGE FGR 240
1.00 FINISHED UPPER STORY FUS 1086
 
Other Improvements 
 


Building Sketch
Photograph
Building Sketch Building Photo
(Click sketch for bigger image)