Building Summary

Data last updated on: 11/1/2025     Ownership current as of: 10/30/2025     Tax Year: 2025
REID 84577

PIN # 4676-72-2655

Location Address Property Description
3861 E BAYWOOD LN WESTHAVEN SOUTH LO:124 SE:2
   
Property Owner Owner's Mailing Address
THE COWEY PROPERTY GROUP LLC
PO BOX 12526
NEW BERN NC 28561
Parcel
Buildings
Misc Improvements
Land
Deeds
Notes
Sales
Photos
Tax Bill
Map
Building Location Address
3861 E BAYWOOD LN
Building Description
01-SFR
Card   of  1
Bldg Type 01-SFR-CONST
Units 1
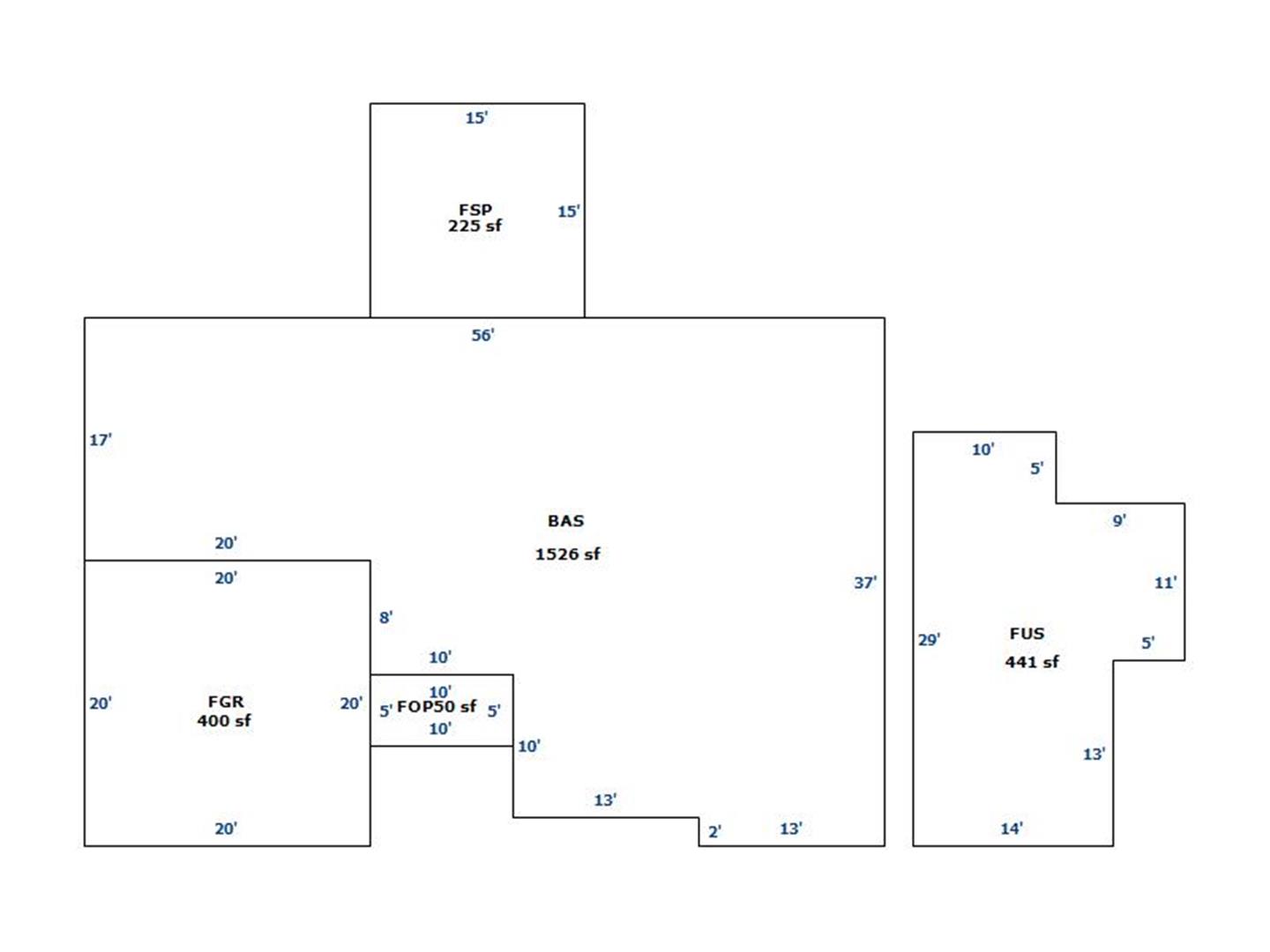
Living Area (SQFT) 1967
Number of Stories 1.30
Style Conventional
Foundation SPRDFOOT
Exterior Alum/Vinyl-Sid
Const Type
Heating HEAT-PUMP
Air Cond CENTRAL
Plumbing Baths (Full):   3
Baths (Half):   0
Extra Fixtures:   0
Total Plumbing Fixtures:   9 
Bedrooms 0
Main Body (SQFT) 1526
Year Built 2018
Additions 4
Effective Year 2018
Remodeled 0
Interior Adj.
Other Features
Building Total & Improvement Details

Grade C +1 114.71%
Percentage Complete 100
Total Adjusted Replacement Cost New $316,158
Physical Depreciation (% Bad) 0%
Depreciated Value $303,512
Economic Depreciation (% Bad) 0%
Functional Depreciation (% Bad) 0%
Total Depreciated Value $303,512
Market Area Factor 1.00
Building Value $303,512
Misc Improvements Value
Total Improvement Value $303,512

Assessed Land Value $40,000
   
Assessed Total Value $343,512



Addition Summary 
StoryTypeCodeArea
1.00 FINISHED GARAGE FGR 400
1.00 FINISHED OPEN PORCH FOP 50
1.00 FINISHED UPPER STORY FUS 441
1.00 FINISHED SCREEN PORCH FSP 225
 
Other Improvements 
 


Building Sketch
Photograph
Building Sketch Building Photo
(Click sketch for bigger image)