Building Summary

Data last updated on: 10/17/2025     Ownership current as of: 10/17/2025     Tax Year: 2025
REID 82860

PIN # 4668-79-6865

Location Address Property Description
359 HUNTINGRIDGE RD FORBES & SMITH
   
Property Owner Owner's Mailing Address
ZHAO, FAN;LU, YONG
207 ROSALER CT
CARY NC 27519
Parcel
Buildings
Misc Improvements
Land
Deeds
Notes
Sales
Photos
Tax Bill
Map
Building Location Address
359 HUNTINGRIDGE RD
Building Description
50-RURALHMST
Card   of  1
Bldg Type 01-SFR-CONST
Units 1
Living Area (SQFT) 5538
Number of Stories 1.00
Style 1.0-Story
Foundation CONTFOOT
Exterior FACE-BRK
Const Type Irr/C
Heating HEAT-PUMP
Air Cond CENTRAL
Plumbing Baths (Full):   5
Baths (Half):   0
Extra Fixtures:   0
Total Plumbing Fixtures:   15 
Bedrooms 0
Main Body (SQFT) 5538
Year Built 1997
Additions 5
Effective Year 2000
Remodeled 0
Interior Adj.
Other Features
Building Total & Improvement Details

Grade B 129.41%
Percentage Complete 100
Total Adjusted Replacement Cost New $904,821
Physical Depreciation (% Bad) 0%
Depreciated Value $696,712
Economic Depreciation (% Bad) 0%
Functional Depreciation (% Bad) 0%
Total Depreciated Value $696,712
Market Area Factor 1.00
Building Value $696,712
Misc Improvements Value $6,070
Total Improvement Value $702,782

Assessed Land Value $154,219
   
Assessed Total Value $857,001



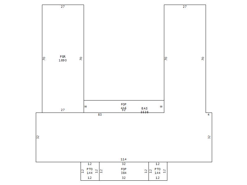
Addition Summary 
StoryTypeCodeArea
1.00 FINISHED OPEN PORCH FOP 416
1.00 FINISHED GARAGE FGR 1890
1.00 PATIO PTO 144
1.00 FINISHED OPEN PORCH FOP 384
1.00 PATIO PTO 144
 
Other Improvements 
UnitsDescriptionItemCodeYear% BadValue
18x20 DIMENSIONS PIER FAIR 2000 68 6070
 


Building Sketch
Photograph
Building Sketch Building Photo
(Click sketch for bigger image)