Building Summary

Data last updated on: 10/26/2025     Ownership current as of: 10/23/2025     Tax Year: 2025
REID 23699

PIN # 4655-91-2654

Location Address Property Description
1036 PEACEFUL LN J L NOBLES TR:2
   
Property Owner Owner's Mailing Address
KING, CLAYTON WILLIAM;DAVIDSON, COLBY
1036 PEACEFUL LN
WINTERVILLE NC 28590
Parcel
Buildings
Misc Improvements
Land
Deeds
Notes
Sales
Photos
Tax Bill
Map
Building Location Address
1036 PEACEFUL LN
Building Description
50-RURALHMST
Card   of  1
Bldg Type 01-SFR-CONST
Units 1
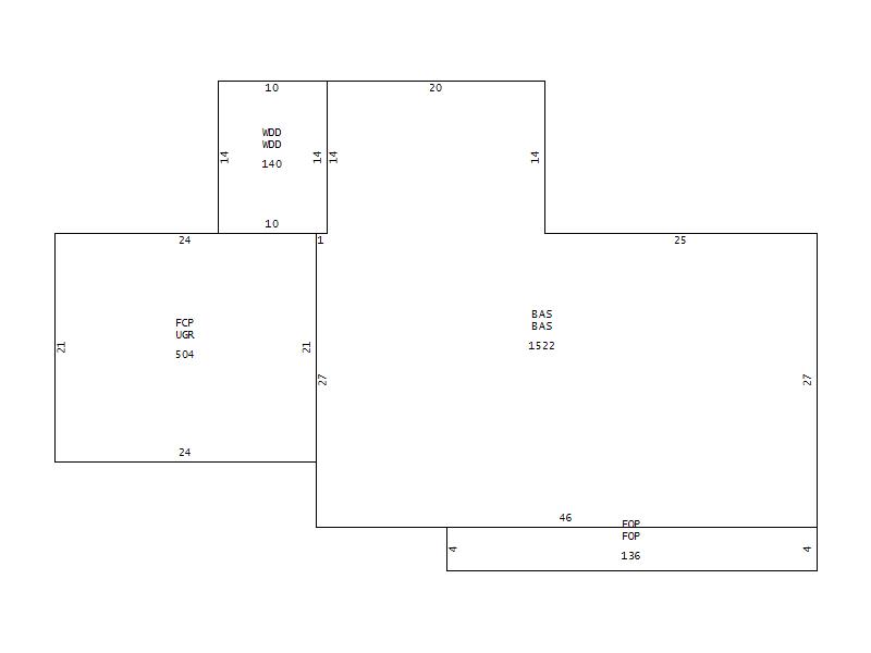
Living Area (SQFT) 1522
Number of Stories 1.00
Style 1.0-Story
Foundation CONTFOOT
Exterior BRICK/VINYL
Const Type Gable
Heating FORCED-AIR-DUCTED
Air Cond none
Plumbing Baths (Full):   1
Baths (Half):   1
Extra Fixtures:   0
Total Plumbing Fixtures:   5 
Bedrooms 3
Main Body (SQFT) 1522
Year Built 1969
Additions 3
Effective Year 1990
Remodeled 0
Interior Adj.
Other Features
Building Total & Improvement Details

Grade C 100%
Percentage Complete 100
Total Adjusted Replacement Cost New $221,124
Physical Depreciation (% Bad) 0%
Depreciated Value $139,308
Economic Depreciation (% Bad) 0%
Functional Depreciation (% Bad) 0%
Total Depreciated Value $139,308
Market Area Factor 1.00
Building Value $139,308
Misc Improvements Value $1,470
Total Improvement Value $140,778

Assessed Land Value $85,105
   
Assessed Total Value $225,883



Addition Summary 
StoryTypeCodeArea
1.00 WOOD DECK WDD 140
1.00 UNFINISHED GARAGE UGR 504
1.00 FINISHED OPEN PORCH FOP 136
 
Other Improvements 
UnitsDescriptionItemCodeYear% BadValue
17x24 DIMENSIONS STORAGE/SHOP POOR 1969 80 1470
 


Building Sketch
Photograph
Building Sketch Building Photo
(Click sketch for bigger image)