Building Summary

Data last updated on: 10/25/2025     Ownership current as of: 10/23/2025     Tax Year: 2025
REID 798

PIN # 4655-91-4197

Location Address Property Description
1028 PEACEFUL LN RES. (NOBLES)
   
Property Owner Owner's Mailing Address
VANETTEN, CHAD RICHARD
1028 PEACEFUL LN
WINTERVILLE NC 28590
Parcel
Buildings
Misc Improvements
Land
Deeds
Notes
Sales
Photos
Tax Bill
Map
Building Location Address
1028 PEACEFUL LN
Building Description
50-RURALHMST
Card   of  1
Bldg Type 01-SFR-CONST
Units 1
Living Area (SQFT) 1323
Number of Stories 1.00
Style 1.0-Story
Foundation CONTFOOT
Exterior FACE-BRK
Const Type Gable
Heating HEAT-PUMP
Air Cond CENTRAL
Plumbing Baths (Full):   1
Baths (Half):   1
Extra Fixtures:   0
Total Plumbing Fixtures:   5 
Bedrooms 3
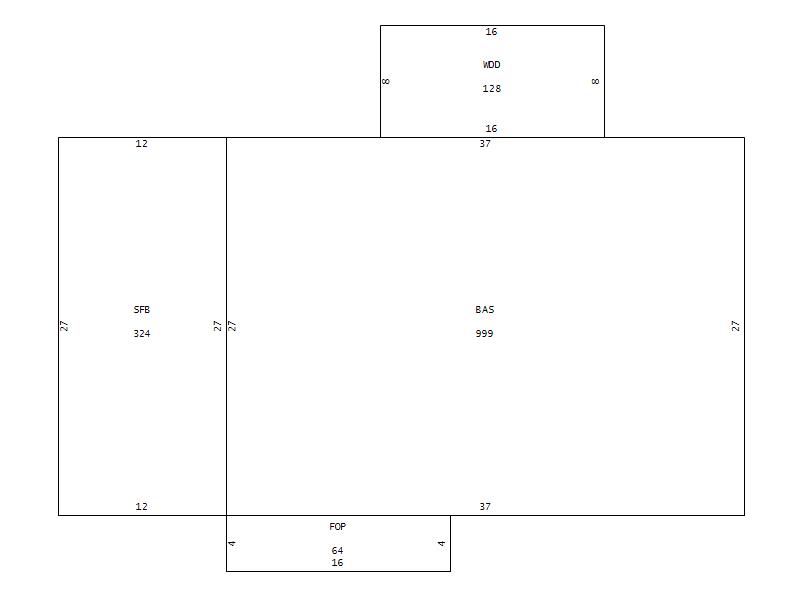
Main Body (SQFT) 999
Year Built 1968
Additions 3
Effective Year 1990
Remodeled 0
Interior Adj.
Other Features
Building Total & Improvement Details

Grade C 100%
Percentage Complete 100
Total Adjusted Replacement Cost New $183,802
Physical Depreciation (% Bad) 0%
Depreciated Value $115,795
Economic Depreciation (% Bad) 0%
Functional Depreciation (% Bad) 0%
Total Depreciated Value $115,795
Market Area Factor 1.00
Building Value $115,795
Misc Improvements Value $8,390
Total Improvement Value $124,185

Assessed Land Value $30,000
   
Assessed Total Value $154,185



Addition Summary 
StoryTypeCodeArea
1.00 WOOD DECK WDD 128
1.00 SEMI-FINISHED BASE SFB 324
1.00 FINISHED OPEN PORCH FOP 64
 
Other Improvements 
UnitsDescriptionItemCodeYear% BadValue
12x24 DIMENSIONS STORAGE/SHOP AVERAGE 2002 62 3800
14x24 DIMENSIONS GARAGE AVERAGE 2000 68 4590
 


Building Sketch
Photograph
Building Sketch Building Photo
(Click sketch for bigger image)