Building Summary

Data last updated on: 10/24/2025     Ownership current as of: 10/23/2025     Tax Year: 2025
REID 79009

PIN # 4695-86-6290

Location Address Property Description
4974 NC 43 S MAE BELL EVANS PROPERTIES LO:1
   
Property Owner Owner's Mailing Address
JC HAZELTON BUILDERS LLC
105 OAKMONT DRIVE UNIT D
GREENVILLE NC 27858
Parcel
Buildings
Misc Improvements
Land
Deeds
Notes
Sales
Photos
Tax Bill
Map
Building Location Address
4974 NC 43 S
Building Description
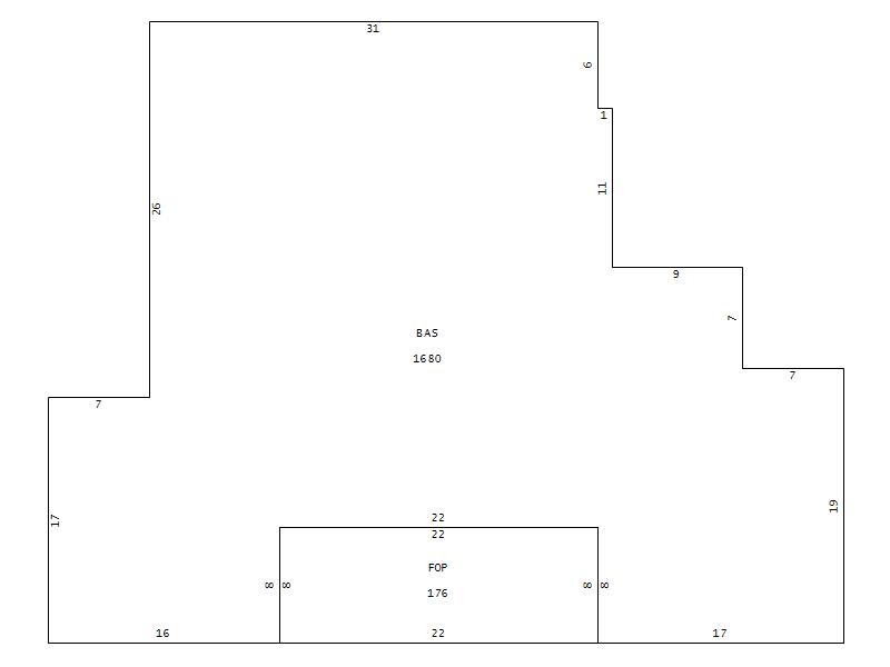
01-SFR
Card   of  1
Bldg Type 01-SFR-CONST
Units 1
Living Area (SQFT) 1680
Number of Stories 1.00
Style 1.0-Story
Foundation CONTFOOT
Exterior FACE-BRK
Const Type Gable
Heating FORCED-AIR-DUCTED
Air Cond none
Plumbing Baths (Full):   1
Baths (Half):   1
Extra Fixtures:   0
Total Plumbing Fixtures:   5 
Bedrooms 3
Main Body (SQFT) 1680
Year Built 1937
Additions 1
Effective Year 1995
Remodeled 0
Interior Adj.
Other Features
Building Total & Improvement Details

Grade C 100%
Percentage Complete 100
Total Adjusted Replacement Cost New $233,926
Physical Depreciation (% Bad) 0%
Depreciated Value $166,087
Economic Depreciation (% Bad) 0%
Functional Depreciation (% Bad) 0%
Total Depreciated Value $166,087
Market Area Factor 1.00
Building Value $166,087
Misc Improvements Value $7,610
Total Improvement Value $173,697

Assessed Land Value $65,800
   
Assessed Total Value $239,497



Addition Summary 
StoryTypeCodeArea
1.00 FINISHED OPEN PORCH FOP 176
 
Other Improvements 
UnitsDescriptionItemCodeYear% BadValue
30x20 DIMENSIONS STORAGE/SHOP FAIR 1985 80 2510
18x28 DIMENSIONS PACK BARN 1937 80 100
30x24 DIMENSIONS STORAGE/SHOP AVERAGE 1985 80 5000
 


Building Sketch
Photograph
Building Sketch Building Photo
(Click sketch for bigger image)