Building Summary

Data last updated on: 10/25/2025     Ownership current as of: 10/23/2025     Tax Year: 2025
REID 34771

PIN # 4686-93-3703

Location Address Property Description
1908 OLD FIRE TOWER RD DAVID HILL 2002 LO:1
   
Property Owner Owner's Mailing Address
LS HOLDINGS LLC
PO BOX 4952
ASHEBORO NC 27204
Parcel
Buildings
Misc Improvements
Land
Deeds
Notes
Sales
Photos
Tax Bill
Map
Building Location Address
1908 OLD FIRE TOWER RD
Card   of  1        Section   of  1
Building Details

Building Name
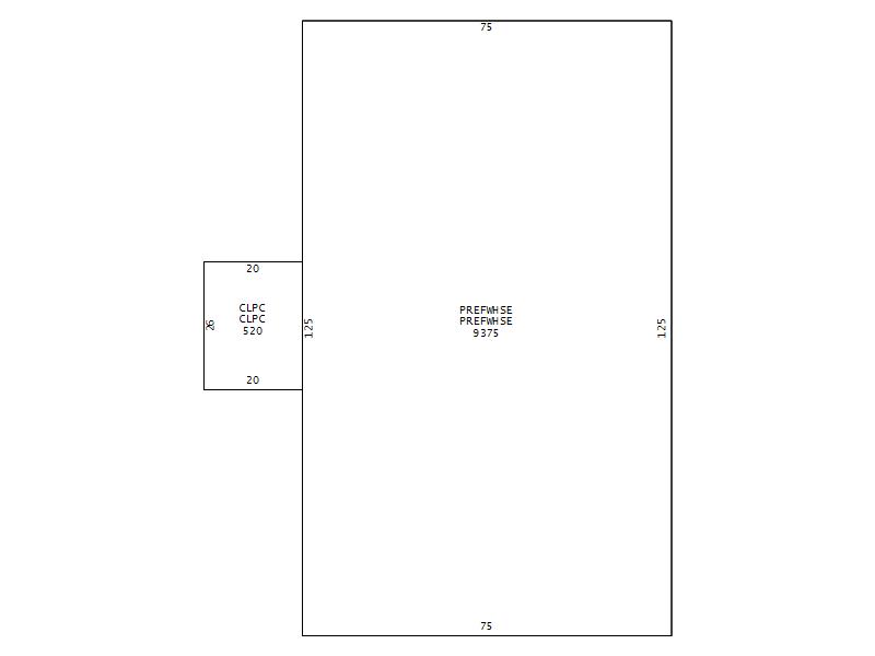
Primary Occupancy Type 06-WHSE-CONST
Primary Occupancy 48-WHSESTG
Primary Class C
Primary Quality Avg
Year Built 1988
Effective Year 2015
Physical Depreciation (Rating) DEPRECIATION
Physical Depreciation (% Bad) 8.00%
Economic Depreciation (% Bad) 0%
Functional Depreciation (% Bad) 0%
Gross Leasable Area (SQFT) 9375
Remodeled Year
Total Stories 1

Section Details

Occupancy Type 06-WHSE-CONST


EXTRA FIXTURES 4
NONE 0
Class C
Depreciation 8%
Depreciation DEPRECIATION
FRGT. ELEV. 0
PASS. ELEV. 0
ESCALATORS 0
Foundation SPRDFOOT
DIR VENT FIREPL 0
MASON FIREPL 0
Heat NONE
Interior Finish MINIMUM
Occupancy 48-WHSESTG
Quality Avg
12
Building Total & Improvement Details

Total Adjusted Replacement Cost New $651,107
Physical Depreciation (% Bad) 8.00%
Depreciated Value $599,018
Economic Depreciation (% Bad) 0%
Functional Depreciation (% Bad) 0%
Total Depreciated Value $599,018
Market Area Factor 1.00
Building Value $599,018
Misc Improvements Value $11,380
Total Improvement Value $610,398

Assessed Land Value $101,078
   
Assessed Total Value $711,476


Addition Summary 
StoryTypeCodeArea
1.00 COVERED LOADING PLATFORM CLPC 520
 
Other Improvements 
UnitsDescriptionItemCodeYear% BadValue
44x16 DIMENSIONS Loading Dock Dirt 2 1988 80 1900
8450 UNITS PAVING ASPHALT 1995 78 7440
14x12 DIMENSIONS STORAGE/SHOP AVERAGE 1996 76 1400
10x10 DIMENSIONS SHELTER AVERAGE 2011 34 640
 


Building Sketch
Photograph
Building Sketch Building Photo
(Click sketch for bigger image)