Building Summary

Data last updated on: 10/24/2025     Ownership current as of: 10/23/2025     Tax Year: 2025
REID 77770

PIN # 4696-22-6045

Location Address Property Description
1800 4 FOX DEN WY GREYFOX RUN PH:1 UN:4
   
Property Owner Owner's Mailing Address
NIPP, CHARLIE DELL;MAKHAMEDOVA, RISOLAT
1800 FOX DEN WY UNIT 4
GREENVILLE NC 27858
Parcel
Buildings
Misc Improvements
Land
Deeds
Notes
Sales
Photos
Tax Bill
Map
Building Location Address
1800 FOX DEN WY
Building Description
04-COND/TWN/DUP-SFR
Card   of  1
Bldg Type 03-MFR-CONST
Units 1
Living Area (SQFT) 1665
Number of Stories 2.25
Style Townhouse
Foundation SPRDFOOT
Exterior Alum/Vinyl-Sid
Const Type
Heating FORCED-AIR-DUCTED
Air Cond CENTRAL
Plumbing Baths (Full):   2
Baths (Half):   1
Extra Fixtures:   0
Total Plumbing Fixtures:   8 
Bedrooms 0
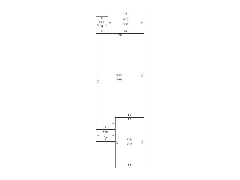
Main Body (SQFT) 740
Year Built 2008
Additions 5
Effective Year 2008
Remodeled 0
Interior Adj.
Other Features
Building Total & Improvement Details

Grade C +3 103.68%
Percentage Complete 100
Total Adjusted Replacement Cost New $209,084
Physical Depreciation (% Bad) 0%
Depreciated Value $175,631
Economic Depreciation (% Bad) 0%
Functional Depreciation (% Bad) 0%
Total Depreciated Value $175,631
Market Area Factor 1.00
Building Value $175,631
Misc Improvements Value
Total Improvement Value $175,631

Assessed Land Value $30,000
   
Assessed Total Value $205,631



Addition Summary 
StoryTypeCodeArea
1.00 PATIO PTO 135
1.00 FINISHED STORAGE FST 35
1.00 FINISHED OPEN PORCH FOP 40
1.00 FINISHED GARAGE FGR 252
1.00 FINISHED UPPER STORY FUS 925
 
Other Improvements 
 


Building Sketch
Photograph
Building Sketch Building Photo
(Click sketch for bigger image)