Building Summary

Data last updated on: 10/17/2025     Ownership current as of: 10/17/2025     Tax Year: 2025
REID 74316

PIN # 4685-24-8343

Location Address Property Description
2257 FRANKLIN DR Canterbury LO:222 PH:3 SE:6 PL:MB64-25
   
Property Owner Owner's Mailing Address
CLAXTON, REGINA
2257 FRANKLIN DR
WINTERVILLE NC 28590
Parcel
Buildings
Misc Improvements
Land
Deeds
Notes
Sales
Photos
Tax Bill
Map
Building Location Address
2257 FRANKLIN DR
Building Description
01-SFR
Card   of  1
Bldg Type 01-SFR-CONST
Units 1
Living Area (SQFT) 2732
Number of Stories 2.40
Style 2.5-Stories-or-more
Foundation SPRDFOOT
Exterior Alum/Vinyl-Sid
Const Type Gable
Heating FORCED-AIR-DUCTED
Air Cond CENTRAL
Plumbing Baths (Full):   3
Baths (Half):   0
Extra Fixtures:   0
Total Plumbing Fixtures:   9 
Bedrooms 3
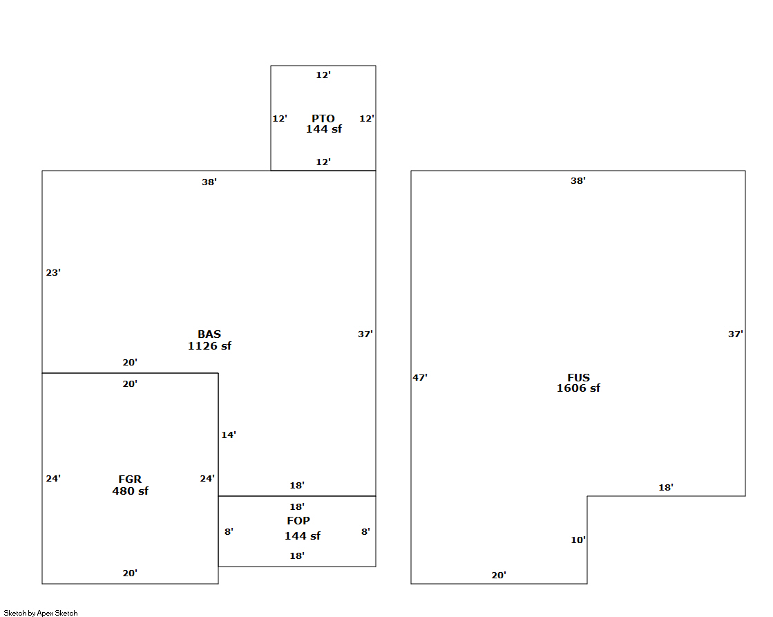
Main Body (SQFT) 1126
Year Built 2018
Additions 4
Effective Year 2018
Remodeled 0
Interior Adj.
Other Features
Building Total & Improvement Details

Grade C+5 107.35%
Percentage Complete 100
Total Adjusted Replacement Cost New $361,613
Physical Depreciation (% Bad) 0%
Depreciated Value $347,148
Economic Depreciation (% Bad) 0%
Functional Depreciation (% Bad) 0%
Total Depreciated Value $347,148
Market Area Factor 1.00
Building Value $347,148
Misc Improvements Value
Total Improvement Value $347,148

Assessed Land Value $40,000
   
Assessed Total Value $387,148



Addition Summary 
StoryTypeCodeArea
1.00 FINISHED GARAGE FGR 480
1.00 FINISHED OPEN PORCH FOP 144
1.00 FINISHED UPPER STORY FUS 1606
1.00 PATIO PTO 144
 
Other Improvements 
 


Building Sketch
Photograph
Building Sketch Building Photo
(Click sketch for bigger image)