Building Summary

Data last updated on: 10/17/2025     Ownership current as of: 10/17/2025     Tax Year: 2025
REID 74308

PIN # 4685-24-6439

Location Address Property Description
2266 FRANKLIN DR Canterbury LO:166 PH:3 SE:6 PL:MB64-25
   
Property Owner Owner's Mailing Address
GATHRIGHT, EMILY CLAIRE;RICH, PATRICK RUSSELL
2266 FRANKLIN DR
WINTERVILLE NC 28590
Parcel
Buildings
Misc Improvements
Land
Deeds
Notes
Sales
Photos
Tax Bill
Map
Building Location Address
2266 FRANKLIN DR
Building Description
01-SFR
Card   of  1
Bldg Type 01-SFR-CONST
Units 1
Living Area (SQFT) 2667
Number of Stories 2.35
Style 2.0-Story
Foundation SPRDFOOT
Exterior Alum/Vinyl-Sid
Const Type Gable
Heating FORCED-AIR-DUCTED
Air Cond CENTRAL
Plumbing Baths (Full):   3
Baths (Half):   0
Extra Fixtures:   0
Total Plumbing Fixtures:   9 
Bedrooms 4
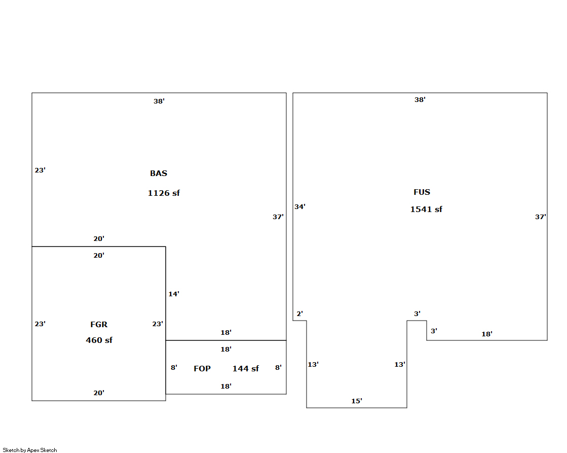
Main Body (SQFT) 1126
Year Built 2019
Additions 3
Effective Year 2019
Remodeled 0
Interior Adj.
Other Features
Building Total & Improvement Details

Grade C+5 107.35%
Percentage Complete 100
Total Adjusted Replacement Cost New $353,910
Physical Depreciation (% Bad) 0%
Depreciated Value $339,754
Economic Depreciation (% Bad) 0%
Functional Depreciation (% Bad) 0%
Total Depreciated Value $339,754
Market Area Factor 1.00
Building Value $339,754
Misc Improvements Value
Total Improvement Value $339,754

Assessed Land Value $40,000
   
Assessed Total Value $379,754



Addition Summary 
StoryTypeCodeArea
1.00 FINISHED GARAGE FGR 460
1.00 FINISHED OPEN PORCH FOP 144
1.00 FINISHED UPPER STORY FUS 1541
 
Other Improvements 
 


Building Sketch
Photograph
Building Sketch Building Photo
(Click sketch for bigger image)