Building Summary

Data last updated on: 10/17/2025     Ownership current as of: 10/17/2025     Tax Year: 2025
REID 74303

PIN # 4685-34-5695

Location Address Property Description
2203 FRANKLIN DR Canterbury LO:141 PH:3 SE:6 PL:MB64-25
   
Property Owner Owner's Mailing Address
GARCIA, YOLANDA;BARTLETT, DABNEY L
2203 FRANKLIN DR
WINTERVILLE NC 28590
Parcel
Buildings
Misc Improvements
Land
Deeds
Notes
Sales
Photos
Tax Bill
Map
Building Location Address
2203 FRANKLIN DR
Building Description
01-SFR
Card   of  1
Bldg Type 01-SFR-CONST
Units 1
Living Area (SQFT) 2286
Number of Stories 1.80
Style 2.0-Story
Foundation CONTFOOT
Exterior Alum/Vinyl-Sid
Const Type
Heating HEAT-PUMP
Air Cond CENTRAL
Plumbing Baths (Full):   2
Baths (Half):   1
Extra Fixtures:   0
Total Plumbing Fixtures:   8 
Bedrooms 0
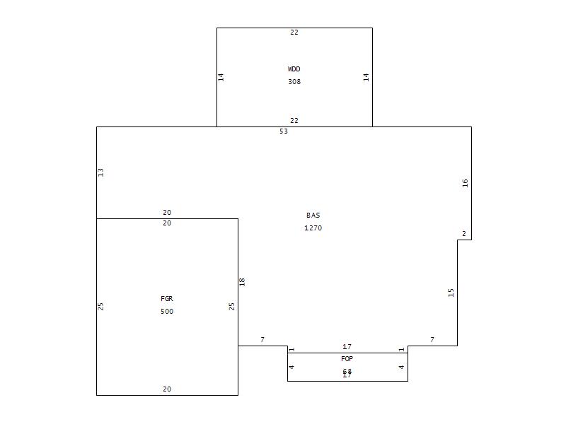
Main Body (SQFT) 1270
Year Built 2007
Additions 4
Effective Year 2007
Remodeled 0
Interior Adj.
Other Features
Building Total & Improvement Details

Grade C+5 107.35%
Percentage Complete 100
Total Adjusted Replacement Cost New $334,576
Physical Depreciation (% Bad) 0%
Depreciated Value $284,390
Economic Depreciation (% Bad) 0%
Functional Depreciation (% Bad) 0%
Total Depreciated Value $284,390
Market Area Factor 1.00
Building Value $284,390
Misc Improvements Value
Total Improvement Value $284,390

Assessed Land Value $40,000
   
Assessed Total Value $324,390



Addition Summary 
StoryTypeCodeArea
1.00 WOOD DECK WDD 308
1.00 FINISHED GARAGE FGR 500
1.00 FINISHED OPEN PORCH FOP 68
1.00 FINISHED UPPER STORY FUS 1016
 
Other Improvements 
 


Building Sketch
Photograph
Building Sketch Building Photo
(Click sketch for bigger image)