Building Summary

Data last updated on: 10/20/2025     Ownership current as of: 10/17/2025     Tax Year: 2025
REID 72601

PIN # 4674-68-6448

Location Address Property Description
2706 GREGORY CT BAREFOOT LANDING LO:122 PH:2 SE:4
   
Property Owner Owner's Mailing Address
NELSON, JOHN PATRICK;NELSON, WINTER R
2706 GREGORY CT
WINTERVILLE NC 28590
Parcel
Buildings
Misc Improvements
Land
Deeds
Notes
Sales
Photos
Tax Bill
Map
Building Location Address
2706 GREGORY CT
Building Description
01-SFR
Card   of  1
Bldg Type 01-SFR-CONST
Units 1
Living Area (SQFT) 1654
Number of Stories 1.00
Style 1.0-Story
Foundation SPRDFOOT
Exterior BRICK/VINYL
Const Type
Heating HEAT-PUMP
Air Cond CENTRAL
Plumbing Baths (Full):   2
Baths (Half):   0
Extra Fixtures:   0
Total Plumbing Fixtures:   6 
Bedrooms 3
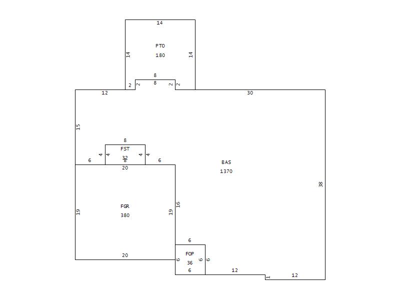
Main Body (SQFT) 1370
Year Built 2007
Additions 5
Effective Year 2007
Remodeled 0
Interior Adj.
Other Features
Building Total & Improvement Details

Grade C +1 111.03%
Percentage Complete 100
Total Adjusted Replacement Cost New $261,837
Physical Depreciation (% Bad) 0%
Depreciated Value $222,561
Economic Depreciation (% Bad) 0%
Functional Depreciation (% Bad) 0%
Total Depreciated Value $222,561
Market Area Factor 1.00
Building Value $222,561
Misc Improvements Value $4,770
Total Improvement Value $227,331

Assessed Land Value $40,000
   
Assessed Total Value $267,331



Addition Summary 
StoryTypeCodeArea
1.00 PATIO PTO 180
1.00 FINISHED STORAGE FST 32
1.00 FINISHED GARAGE FGR 380
1.00 FINISHED OPEN PORCH FOP 36
1.00 Finished room over garage FROG 284
 
Other Improvements 
UnitsDescriptionItemCodeYear% BadValue
10x16 DIMENSIONS STORAGE/SHOP AVERAGE 2018 14 4770
 


Building Sketch
Photograph
Building Sketch Building Photo
(Click sketch for bigger image)