Building Summary

Data last updated on: 10/20/2025     Ownership current as of: 10/17/2025     Tax Year: 2025
REID 71370

PIN # 4674-78-1036

Location Address Property Description
2770 ANGE ST BAREFOOT LANDING LO:73 PH:1 SE:4
   
Property Owner Owner's Mailing Address
SHAHID, ABDULLAH
2770 ANGE ST
WINTERVILLE NC 28590
Parcel
Buildings
Misc Improvements
Land
Deeds
Notes
Sales
Photos
Tax Bill
Map
Building Location Address
2770 ANGE ST
Building Description
01-SFR
Card   of  1
Bldg Type 01-SFR-CONST
Units 1
Living Area (SQFT) 1484
Number of Stories 1.20
Style 1.5-Story
Foundation SPRDFOOT
Exterior BRICK/VINYL
Const Type
Heating HEAT-PUMP
Air Cond CENTRAL
Plumbing Baths (Full):   2
Baths (Half):   0
Extra Fixtures:   0
Total Plumbing Fixtures:   6 
Bedrooms 3
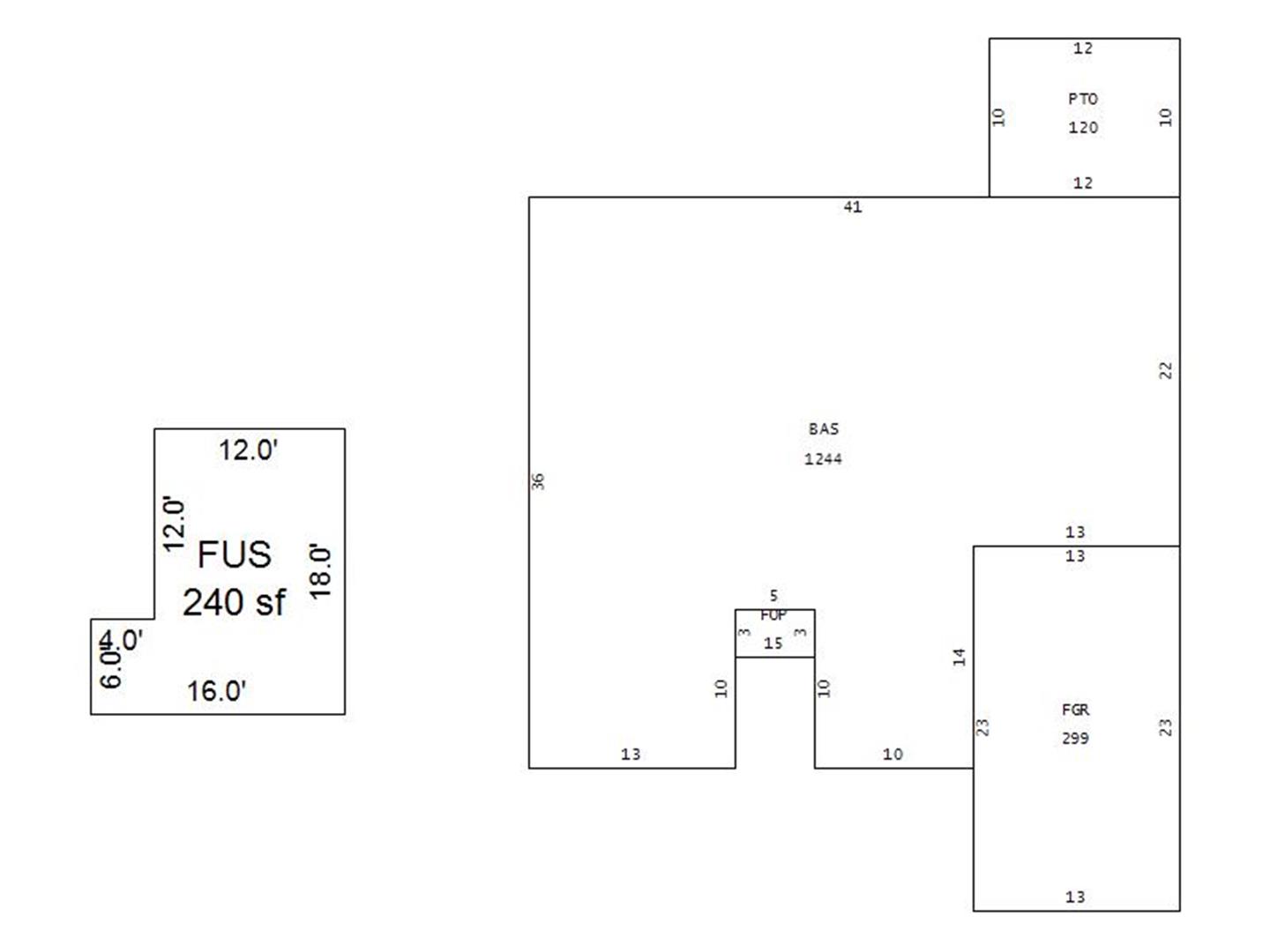
Main Body (SQFT) 1244
Year Built 2006
Additions 5
Effective Year 2006
Remodeled 0
Interior Adj.
Other Features
Building Total & Improvement Details

Grade C +1 111.03%
Percentage Complete 100
Total Adjusted Replacement Cost New $242,033
Physical Depreciation (% Bad) 0%
Depreciated Value $203,308
Economic Depreciation (% Bad) 0%
Functional Depreciation (% Bad) 0%
Total Depreciated Value $203,308
Market Area Factor 1.00
Building Value $203,308
Misc Improvements Value $3,080
Total Improvement Value $206,388

Assessed Land Value $40,000
   
Assessed Total Value $246,388



Addition Summary 
StoryTypeCodeArea
1.00 PATIO PTO 120
1.00 FINISHED OPEN PORCH FOP 15
1.00 FINISHED GARAGE FGR 299
1.00 FINISHED UPPER STORY FUS 240
1.00 Partly Unfinished ATTF 236
 
Other Improvements 
UnitsDescriptionItemCodeYear% BadValue
10x12 DIMENSIONS SHELTER AVERAGE 2006 50 580
12x12 DIMENSIONS STORAGE/SHOP AVERAGE 2006 50 2500
 


Building Sketch
Photograph
Building Sketch Building Photo
(Click sketch for bigger image)