Building Summary

Data last updated on: 10/31/2025     Ownership current as of: 10/30/2025     Tax Year: 2025
REID 7111

PIN # 4668-56-4244

Location Address Property Description
3209 NC 43 N JSD REAL ESTATE LLC
   
Property Owner Owner's Mailing Address
JSD REAL ESTATE LLC
740 SE GREENVILLE BV STE 400-163
GREENVILLE NC 27858
Parcel
Buildings
Misc Improvements
Land
Deeds
Notes
Sales
Photos
Tax Bill
Map
Building Location Address
3209 NC 43 N
Card   of  2        Section   of  1
Building Details

Building Name LIBERTY FREE WILL BAPTIST CHURCH
Primary Occupancy Type 07-COMM-CONST
Primary Occupancy 10-COMM
Primary Class C
Primary Quality Avg
Year Built 2006
Effective Year 2016
Physical Depreciation (Rating) DEPRECIATION
Physical Depreciation (% Bad) 10.00%
Economic Depreciation (% Bad) 0%
Functional Depreciation (% Bad) 0%
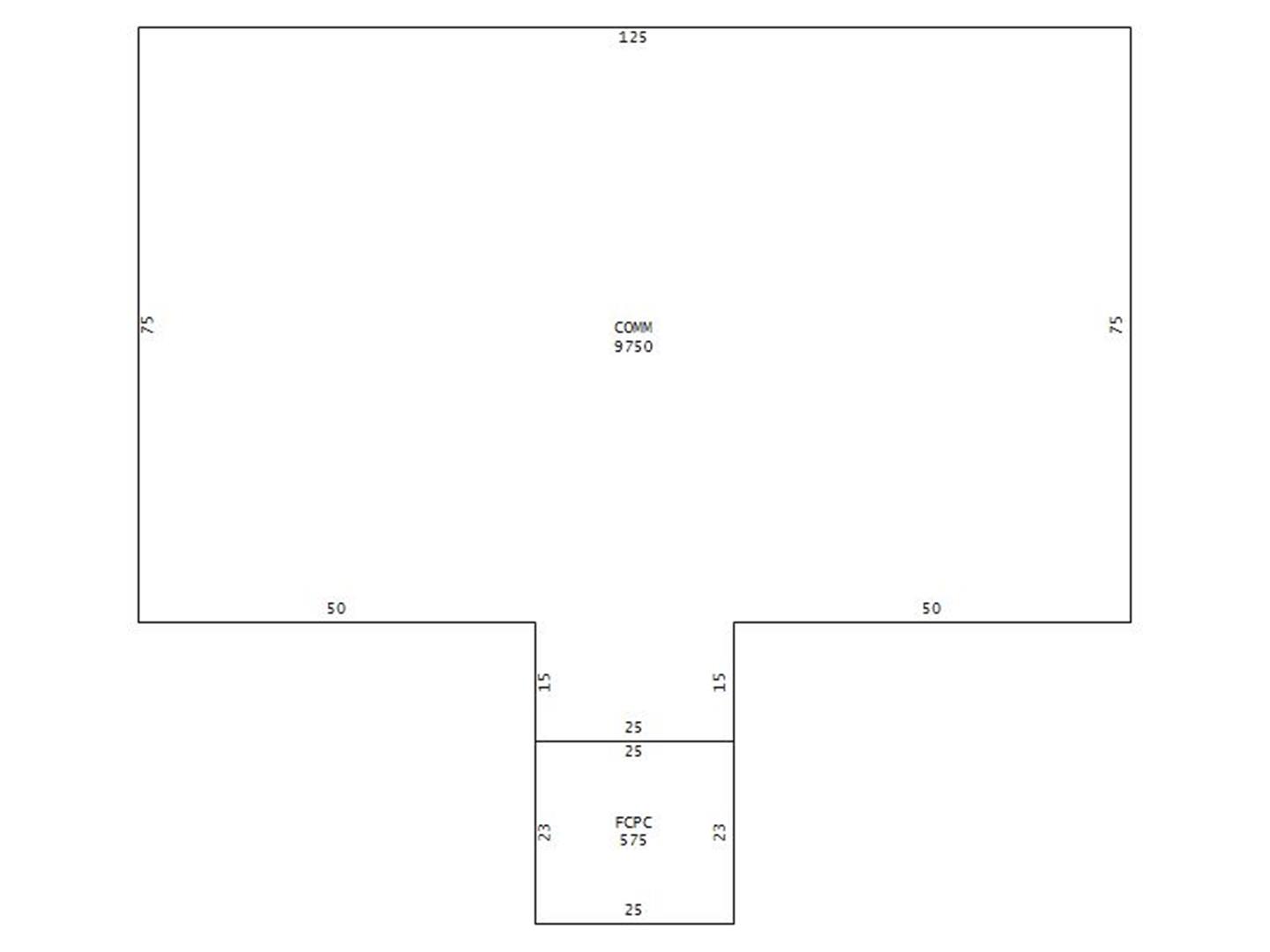
Gross Leasable Area (SQFT) 9750
Remodeled Year
Total Stories 1

Section Details

Occupancy Type 07-COMM-CONST


Air Conditioning CENTRAL
EXTRA FIXTURES 20
NONE 0
Class C
Depreciation 10%
Depreciation DEPRECIATION
Foundation SPECFOOT
DIR VENT FIREPL 0
MASON FIREPL 0
Heat HEAT-PUMP
Interior Finish DRYWALL/SHEETROCK
Occupancy 10-COMM
Quality Avg
Exterior Walls PREFIN-METAL
Building Total & Improvement Details

Total Adjusted Replacement Cost New $1,335,830
Physical Depreciation (% Bad) 10.00%
Depreciated Value $1,202,247
Economic Depreciation (% Bad) 0%
Functional Depreciation (% Bad) 0%
Total Depreciated Value $1,202,247
Market Area Factor 1.00
Building Value $1,202,247
Misc Improvements Value $108,560
Total Improvement Value $1,310,807

Assessed Land Value $256,104
   
Assessed Total Value $1,796,268


Addition Summary 
StoryTypeCodeArea
1.00 FINISHED CARPORT FCPC 575
 
Other Improvements 
UnitsDescriptionItemCodeYear% BadValue
27x27 DIMENSIONS STORAGE/SHOP AVERAGE 2020 9 23020
24x53 DIMENSIONS Mobile Unit 1990 80 13360
24x53 DIMENSIONS Mobile Unit 1990 80 13360
24x53 DIMENSIONS Mobile Unit 1990 80 13360
1600 SIZE PAVING CONCRETE 2021 6 6020
17300 SIZE PAVING ASPHALT 2008 43 39440
 


Building Sketch
Photograph
Building Sketch Building Photo
(Click sketch for bigger image)