Building Summary

Data last updated on: 11/1/2025     Ownership current as of: 10/30/2025     Tax Year: 2025
REID 70323

PIN # 4625-75-8004

Location Address Property Description
7450 US 13 1.38AC CLARA B. FLANAGAN
   
Property Owner Owner's Mailing Address
WHITLEY, ELTON;WHITLEY, JENNIFER
7450 US HIGHWAY 13
FARMVILLE NC 27828
Parcel
Buildings
Misc Improvements
Land
Deeds
Notes
Sales
Photos
Tax Bill
Map
Building Location Address
7450 US 13
Building Description
50-RURALHMST
Card   of  1
Bldg Type 01-SFR-CONST
Units 1
Living Area (SQFT) 2120
Number of Stories 1.40
Style 2.0-Story
Foundation CONTFOOT
Exterior Alum/Vinyl-Sid
Const Type Gable
Heating RADIANT-ELEC
Air Cond none
Plumbing Baths (Full):   1
Baths (Half):   0
Extra Fixtures:   0
Total Plumbing Fixtures:   3 
Bedrooms 3
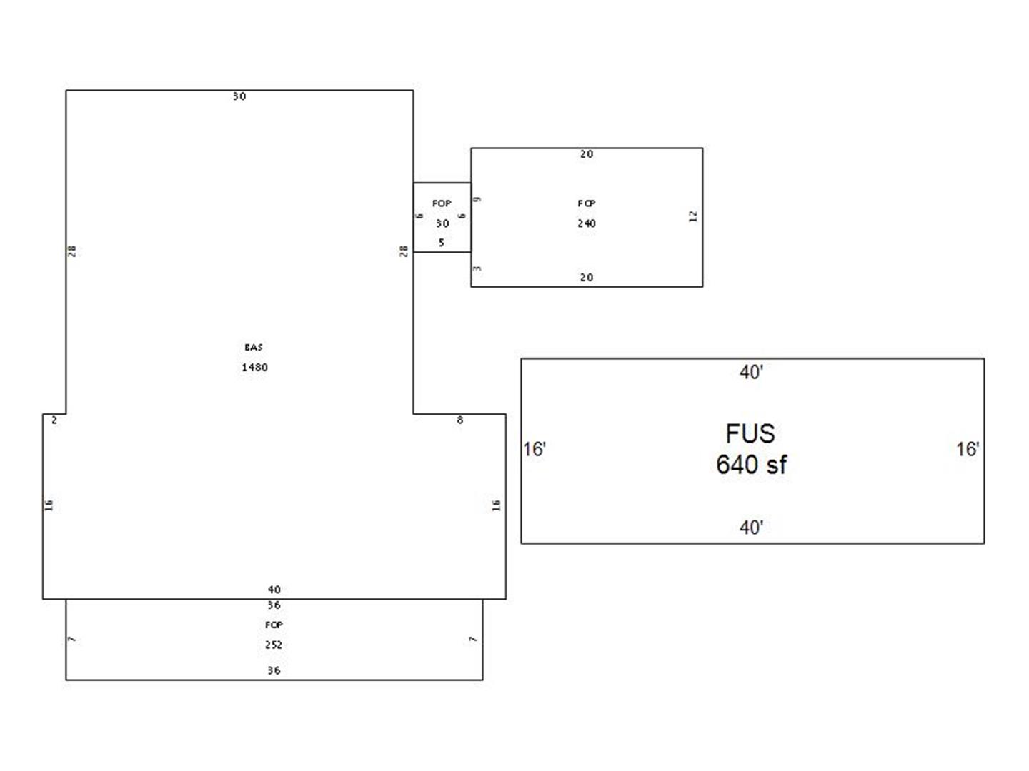
Main Body (SQFT) 1480
Year Built 1901
Additions 4
Effective Year 1980
Remodeled 0
Interior Adj.
Other Features
Building Total & Improvement Details

Grade C 100%
Percentage Complete 100
Total Adjusted Replacement Cost New $255,983
Physical Depreciation (% Bad) 0%
Depreciated Value $117,752
Economic Depreciation (% Bad) 10%
Functional Depreciation (% Bad) 0%
Total Depreciated Value $105,977
Market Area Factor 1.00
Building Value $105,977
Misc Improvements Value
Total Improvement Value $105,977

Assessed Land Value $26,900
   
Assessed Total Value $132,877



Addition Summary 
StoryTypeCodeArea
1.00 FINISHED OPEN PORCH FOP 252
1.00 FINISHED CARPORT FCP 240
1.00 FINISHED OPEN PORCH FOP 30
1.00 FINISHED UPPER STORY FUS 640
 
Other Improvements 
 


Building Sketch
Photograph
Building Sketch Building Photo
(Click sketch for bigger image)