Building Summary

Data last updated on: 10/17/2025     Ownership current as of: 10/17/2025     Tax Year: 2025
REID 68642

PIN # 4685-24-9822

Location Address Property Description
707 TABARD RD Canterbury LO:133 PH:1 SE:6
   
Property Owner Owner's Mailing Address
JSD REAL ESTATE LLC
740 SE GREENVILLE BV STE 400 163
GREENVILLE NC 27858
Parcel
Buildings
Misc Improvements
Land
Deeds
Notes
Sales
Photos
Tax Bill
Map
Building Location Address
707 TABARD RD
Building Description
01-SFR
Card   of  1
Bldg Type 01-SFR-CONST
Units 1
Living Area (SQFT) 2537
Number of Stories 1.80
Style 1.5-Story
Foundation CONTFOOT
Exterior Alum/Vinyl-Sid
Const Type Gable
Heating HEAT-PUMP
Air Cond CENTRAL
Plumbing Baths (Full):   2
Baths (Half):   1
Extra Fixtures:   0
Total Plumbing Fixtures:   8 
Bedrooms 3
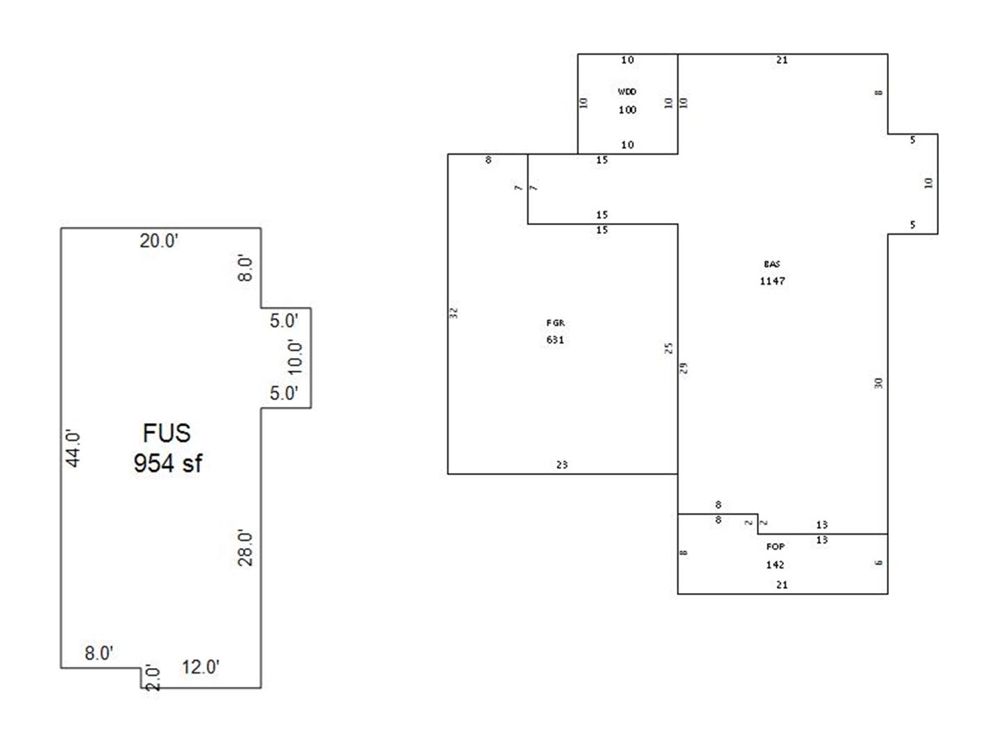
Main Body (SQFT) 1147
Year Built 2005
Additions 5
Effective Year 2005
Remodeled 0
Interior Adj.
Other Features
Building Total & Improvement Details

Grade C+5 107.35%
Percentage Complete 100
Total Adjusted Replacement Cost New $341,824
Physical Depreciation (% Bad) 0%
Depreciated Value $283,714
Economic Depreciation (% Bad) 0%
Functional Depreciation (% Bad) 0%
Total Depreciated Value $283,714
Market Area Factor 1.00
Building Value $283,714
Misc Improvements Value
Total Improvement Value $283,714

Assessed Land Value $40,000
   
Assessed Total Value $323,714



Addition Summary 
StoryTypeCodeArea
1.00 WOOD DECK WDD 100
1.00 FINISHED GARAGE FGR 631
1.00 FINISHED OPEN PORCH FOP 142
1.00 FINISHED UPPER STORY FUS 954
1.00 Partly Finished ATTF 436
 
Other Improvements 
 


Building Sketch
Photograph
Building Sketch Building Photo
(Click sketch for bigger image)