Building Summary

Data last updated on: 10/20/2025     Ownership current as of: 10/17/2025     Tax Year: 2025
REID 68592

PIN # 4674-57-8518

Location Address Property Description
226 LAFOLLETTE DR BAREFOOT LANDING LO:60 PH:3 SE:3
   
Property Owner Owner's Mailing Address
ALEXANDER, AUSTIN TYLER;ALEXANDER, LAURAL MORGAN
226 LAFOLLETTE DR
WINTERVILLE NC 28590
Parcel
Buildings
Misc Improvements
Land
Deeds
Notes
Sales
Photos
Tax Bill
Map
Building Location Address
226 LAFOLLETTE DR
Building Description
01-SFR
Card   of  1
Bldg Type 01-SFR-CONST
Units 1
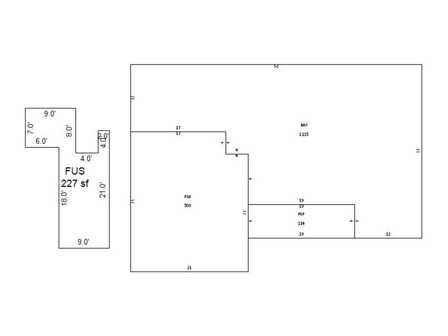
Living Area (SQFT) 1342
Number of Stories 1.00
Style 1.0-Story
Foundation CONTFOOT
Exterior BRICK/VINYL
Const Type Irr/C
Heating HEAT-PUMP
Air Cond CENTRAL
Plumbing Baths (Full):   2
Baths (Half):   0
Extra Fixtures:   0
Total Plumbing Fixtures:   6 
Bedrooms 3
Main Body (SQFT) 1115
Year Built 2005
Additions 3
Effective Year 2005
Remodeled 0
Interior Adj.
Other Features
Building Total & Improvement Details

Grade C +1 111.03%
Percentage Complete 100
Total Adjusted Replacement Cost New $238,816
Physical Depreciation (% Bad) 0%
Depreciated Value $198,217
Economic Depreciation (% Bad) 0%
Functional Depreciation (% Bad) 0%
Total Depreciated Value $198,217
Market Area Factor 1.00
Building Value $198,217
Misc Improvements Value
Total Improvement Value $198,217

Assessed Land Value $40,000
   
Assessed Total Value $238,217



Addition Summary 
StoryTypeCodeArea
1.00 FINISHED GARAGE FGR 509
1.00 FINISHED OPEN PORCH FOP 114
1.00 Finished room over garage FROG 227
 
Other Improvements 
 


Building Sketch
Photograph
Building Sketch Building Photo
(Click sketch for bigger image)