Building Summary

Data last updated on: 10/20/2025     Ownership current as of: 10/17/2025     Tax Year: 2025
REID 68567

PIN # 4674-57-6908

Location Address Property Description
2760 BAREFOOT LN BAREFOOT LO:35 PH:3 SE:3
   
Property Owner Owner's Mailing Address
CLARK, DONNIE EUGENE;CLARK, TAMMIE LIN;CLARK, DYLAN EUGENE;CLARK, SHANE DOUGLAS
2760 BAREFOOT LN
WINTERVILLE NC 28590
Parcel
Buildings
Misc Improvements
Land
Deeds
Notes
Sales
Photos
Tax Bill
Map
Building Location Address
2760 BAREFOOT LN
Building Description
01-SFR
Card   of  1
Bldg Type 01-SFR-CONST
Units 1
Living Area (SQFT) 1523
Number of Stories 1.00
Style 1.0-Story
Foundation CONTFOOT
Exterior BRICK/VINYL
Const Type Irr/C
Heating HEAT-PUMP
Air Cond CENTRAL
Plumbing Baths (Full):   2
Baths (Half):   0
Extra Fixtures:   0
Total Plumbing Fixtures:   6 
Bedrooms 3
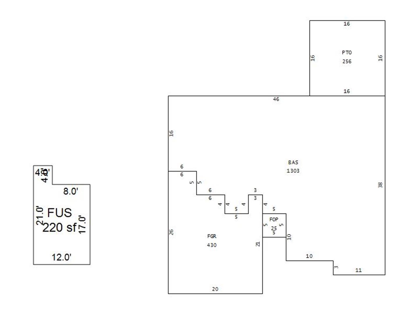
Main Body (SQFT) 1303
Year Built 2004
Additions 4
Effective Year 2004
Remodeled 0
Interior Adj.
Other Features
Building Total & Improvement Details

Grade C +1 111.03%
Percentage Complete 100
Total Adjusted Replacement Cost New $256,937
Physical Depreciation (% Bad) 0%
Depreciated Value $210,688
Economic Depreciation (% Bad) 0%
Functional Depreciation (% Bad) 0%
Total Depreciated Value $210,688
Market Area Factor 1.00
Building Value $210,688
Misc Improvements Value $6,000
Total Improvement Value $216,688

Assessed Land Value $40,000
   
Assessed Total Value $256,688



Addition Summary 
StoryTypeCodeArea
1.00 PATIO PTO 256
1.00 FINISHED GARAGE FGR 430
1.00 FINISHED OPEN PORCH FOP 25
1.00 Finished room over garage FROG 220
 
Other Improvements 
UnitsDescriptionItemCodeYear% BadValue
16x20 DIMENSIONS STORAGE/SHOP AVERAGE 2007 46 6000
 


Building Sketch
Photograph
Building Sketch Building Photo
(Click sketch for bigger image)