Building Summary

Data last updated on: 10/25/2025     Ownership current as of: 10/23/2025     Tax Year: 2025
REID 6756

PIN # 4695-85-9230

Location Address Property Description
5046 NC 43 S RES WOODS
   
Property Owner Owner's Mailing Address
FOELL, RUSSELL S
5046 NC HIGHWAY 43 S
GREENVILLE NC 27858
Parcel
Buildings
Misc Improvements
Land
Deeds
Notes
Sales
Photos
Tax Bill
Map
Building Location Address
5046 NC 43 S
Building Description
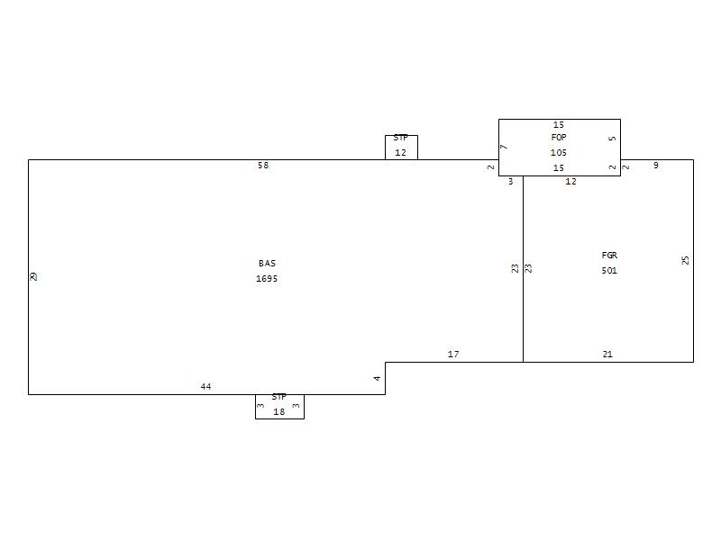
01-SFR
Card   of  1
Bldg Type 01-SFR-CONST
Units 1
Living Area (SQFT) 1695
Number of Stories 1.00
Style 1.0-Story
Foundation CONTFOOT
Exterior ASBESTOS-SHINGLE
Const Type Gable
Heating FORCED-AIR-DUCTED
Air Cond CENTRAL
Plumbing Baths (Full):   1
Baths (Half):   0
Extra Fixtures:   0
Total Plumbing Fixtures:   3 
Bedrooms 3
Main Body (SQFT) 1695
Year Built 1961
Additions 4
Effective Year 1995
Remodeled 0
Interior Adj.
Other Features
Building Total & Improvement Details

Grade C 100%
Percentage Complete 100
Total Adjusted Replacement Cost New $229,359
Physical Depreciation (% Bad) 0%
Depreciated Value $162,845
Economic Depreciation (% Bad) 0%
Functional Depreciation (% Bad) 0%
Total Depreciated Value $162,845
Market Area Factor 1.00
Building Value $162,845
Misc Improvements Value $6,700
Total Improvement Value $169,545

Assessed Land Value $36,000
   
Assessed Total Value $205,545



Addition Summary 
StoryTypeCodeArea
1.00 STOOP STP 12
1.00 FINISHED GARAGE FGR 501
1.00 FINISHED OPEN PORCH FOP 105
1.00 STOOP STP 18
 
Other Improvements 
UnitsDescriptionItemCodeYear% BadValue
30x22 DIMENSIONS GARAGE AVERAGE 1961 80 5640
14x18 DIMENSIONS STORAGE/SHOP FAIR 1978 80 1060
 


Building Sketch
Photograph
Building Sketch Building Photo
(Click sketch for bigger image)