Building Summary

Data last updated on: 10/20/2025     Ownership current as of: 10/17/2025     Tax Year: 2025
REID 66962

PIN # 4674-57-8432

Location Address Property Description
277 LAURIE ELLIS RD BAREFOOT LANDING LO:13 PH:2 SE:2
   
Property Owner Owner's Mailing Address
CRUZ, STEVEN DE LA
1955 85TH ST
BROOKLYN NY 11214
Parcel
Buildings
Misc Improvements
Land
Deeds
Notes
Sales
Photos
Tax Bill
Map
Building Location Address
277 LAURIE ELLIS RD
Building Description
01-SFR
Card   of  1
Bldg Type 01-SFR-CONST
Units 1
Living Area (SQFT) 1457
Number of Stories 1.00
Style 1.0-Story
Foundation CONTFOOT
Exterior BRICK/VINYL
Const Type Irr/C
Heating HEAT-PUMP
Air Cond CENTRAL
Plumbing Baths (Full):   2
Baths (Half):   0
Extra Fixtures:   0
Total Plumbing Fixtures:   6 
Bedrooms 3
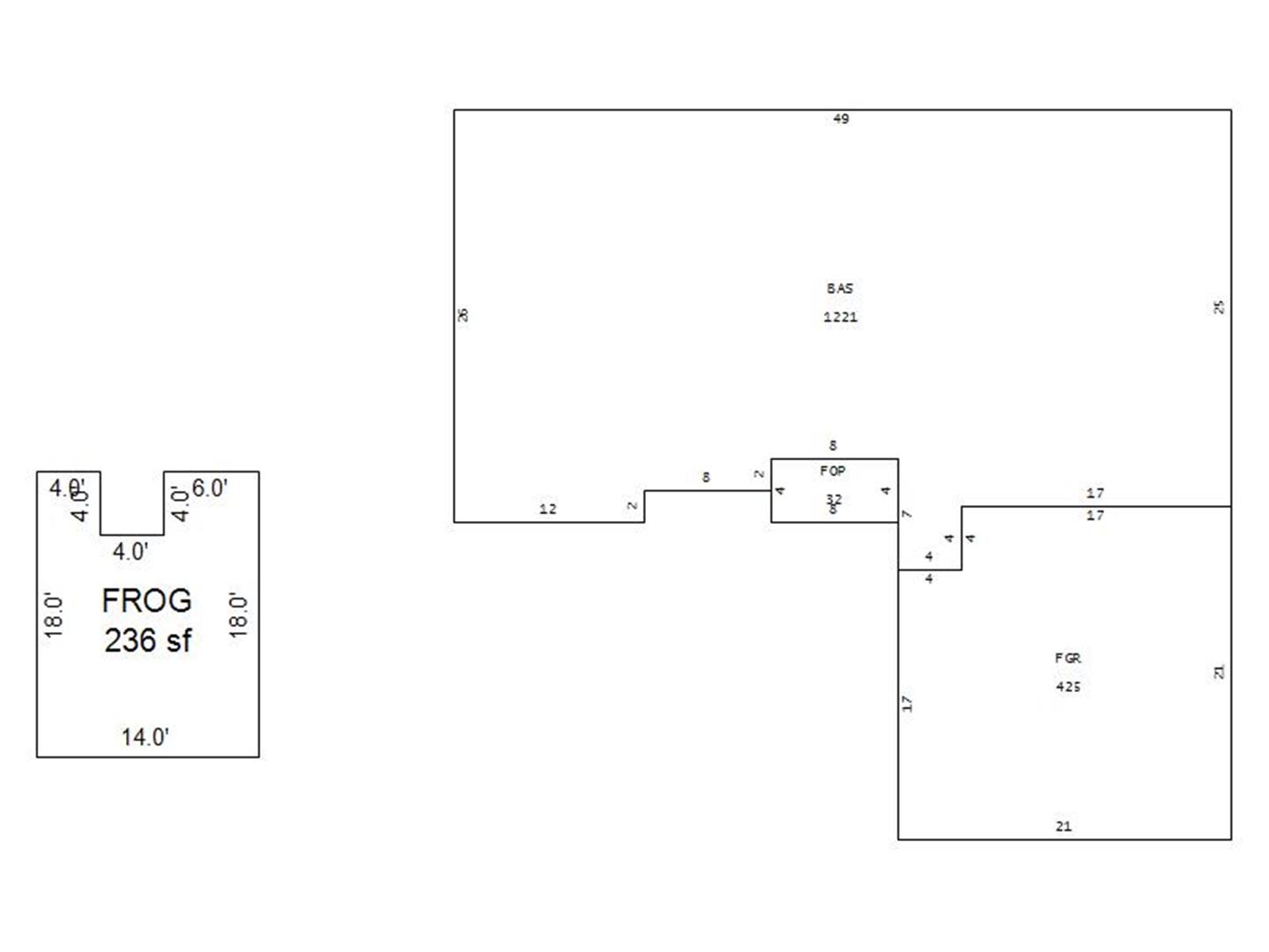
Main Body (SQFT) 1221
Year Built 2004
Additions 3
Effective Year 2004
Remodeled 0
Interior Adj.
Other Features
Building Total & Improvement Details

Grade C +1 111.03%
Percentage Complete 100
Total Adjusted Replacement Cost New $246,414
Physical Depreciation (% Bad) 0%
Depreciated Value $202,059
Economic Depreciation (% Bad) 0%
Functional Depreciation (% Bad) 0%
Total Depreciated Value $202,059
Market Area Factor 1.00
Building Value $202,059
Misc Improvements Value $1,530
Total Improvement Value $203,589

Assessed Land Value $40,000
   
Assessed Total Value $243,589



Addition Summary 
StoryTypeCodeArea
1.00 FINISHED OPEN PORCH FOP 32
1.00 FINISHED GARAGE FGR 425
1.00 Finished room over garage FROG 236
 
Other Improvements 
UnitsDescriptionItemCodeYear% BadValue
10x10 DIMENSIONS STORAGE/SHOP AVERAGE 2004 56 1530
 


Building Sketch
Photograph
Building Sketch Building Photo
(Click sketch for bigger image)