Building Summary

Data last updated on: 10/20/2025     Ownership current as of: 10/17/2025     Tax Year: 2025
REID 66959

PIN # 4674-57-5438

Location Address Property Description
255 LAURIE ELLIS RD BAREFOOT LANDING LO:10
   
Property Owner Owner's Mailing Address
JOHNSON, PARKER FRANKLIN
255 LAURIE ELLIS RD
WINTERVILLE NC 28590
Parcel
Buildings
Misc Improvements
Land
Deeds
Notes
Sales
Photos
Tax Bill
Map
Building Location Address
255 LAURIE ELLIS RD
Building Description
01-SFR
Card   of  1
Bldg Type 01-SFR-CONST
Units 1
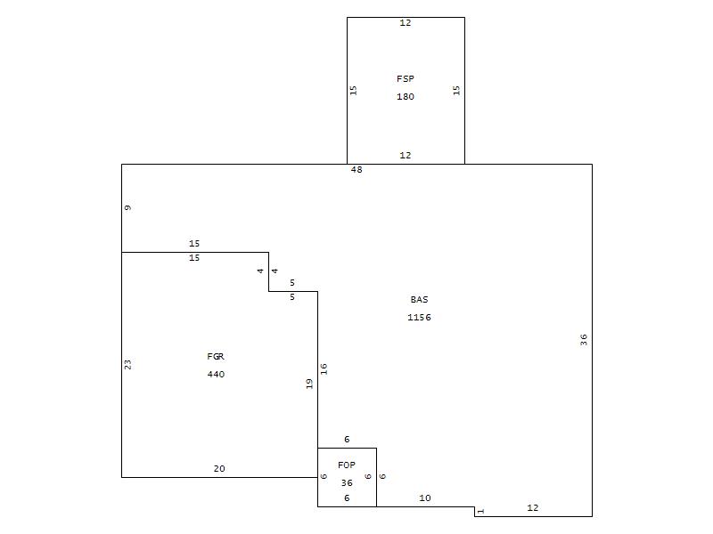
Living Area (SQFT) 1156
Number of Stories 1.00
Style 1.5-Story
Foundation CONTFOOT
Exterior BRICK/VINYL
Const Type Irr/C
Heating HEAT-PUMP
Air Cond CENTRAL
Plumbing Baths (Full):   2
Baths (Half):   0
Extra Fixtures:   0
Total Plumbing Fixtures:   6 
Bedrooms 3
Main Body (SQFT) 1156
Year Built 2003
Additions 4
Effective Year 2003
Remodeled 0
Interior Adj.
Other Features
Building Total & Improvement Details

Grade C +1 111.03%
Percentage Complete 100
Total Adjusted Replacement Cost New $227,259
Physical Depreciation (% Bad) 0%
Depreciated Value $184,080
Economic Depreciation (% Bad) 0%
Functional Depreciation (% Bad) 0%
Total Depreciated Value $184,080
Market Area Factor 1.00
Building Value $184,080
Misc Improvements Value
Total Improvement Value $184,080

Assessed Land Value $40,000
   
Assessed Total Value $224,080



Addition Summary 
StoryTypeCodeArea
1.00 FINISHED SCREEN PORCH FSP 180
1.00 FINISHED GARAGE FGR 440
1.00 FINISHED OPEN PORCH FOP 36
1.00 Partly Unfinished ATTF 301
 
Other Improvements 
 


Building Sketch
Photograph
Building Sketch Building Photo
(Click sketch for bigger image)