Building Summary

Data last updated on: 10/20/2025     Ownership current as of: 10/17/2025     Tax Year: 2026
REID 66416

PIN # 4637-86-5230

Location Address Property Description
2313 BLACKHAWK DR CHINQUAPIN ROAD SUB LO:35 SE:2
   
Property Owner Owner's Mailing Address
HASKINS, ARTHUR TERRANCE II;HASKINS, EBONY DYCHELL
2313 BLACKHAWK DR
FARMVILLE NC 27828
Parcel
Buildings
Misc Improvements
Land
Deeds
Notes
Sales
Photos
Tax Bill
Map
Building Location Address
2313 BLACKHAWK DR
Building Description
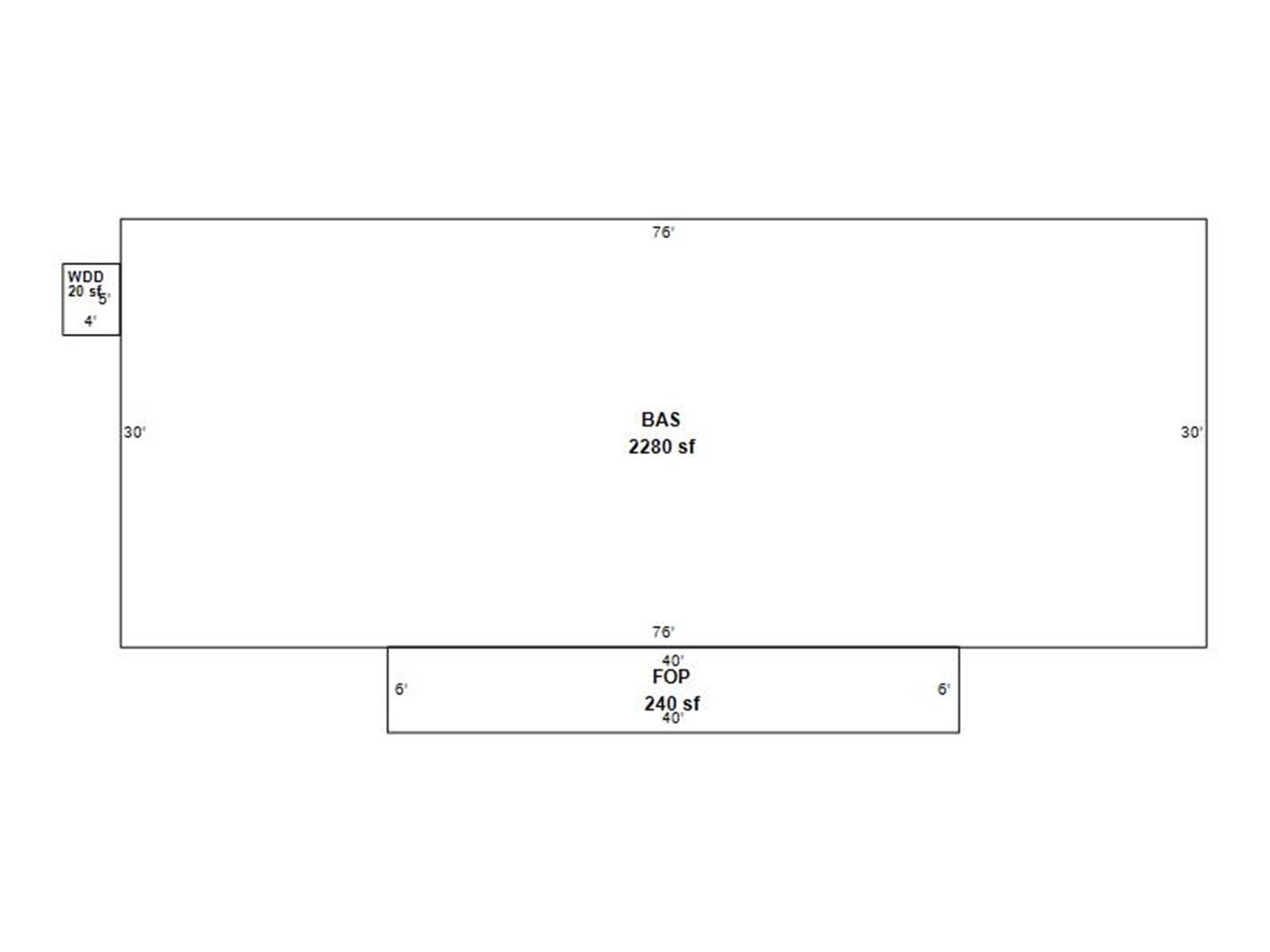
01-SFR
Card   of  1
Bldg Type 01-SFR-CONST
Units 1
Living Area (SQFT) 2280
Number of Stories 1.00
Style Conventional
Foundation CONTFOOT
Exterior Alum/Vinyl-Sid
Const Type Gable
Heating HEAT-PUMP
Air Cond CENTRAL
Plumbing Baths (Full):   3
Baths (Half):   0
Extra Fixtures:   0
Total Plumbing Fixtures:   9 
Bedrooms 4
Main Body (SQFT) 2280
Year Built 2023
Additions 2
Effective Year 2023
Remodeled 0
Interior Adj.
Other Features
Building Total & Improvement Details

Grade C-5 93.4%
Percentage Complete 100
Total Adjusted Replacement Cost New $269,989
Physical Depreciation (% Bad) 0%
Depreciated Value $267,289
Economic Depreciation (% Bad) 0%
Functional Depreciation (% Bad) 0%
Total Depreciated Value $267,289
Market Area Factor 1.00
Building Value $267,289
Misc Improvements Value
Total Improvement Value $267,289

Assessed Land Value $20,000
   
Assessed Total Value $287,289



Addition Summary 
StoryTypeCodeArea
1.00 FINISHED OPEN PORCH FOP 240
1.00 WOOD DECK WDD 20
 
Other Improvements 
 


Building Sketch
Photograph
Building Sketch Building Photo
(Click sketch for bigger image)