Building Summary

Data last updated on: 10/20/2025     Ownership current as of: 10/17/2025     Tax Year: 2025
REID 6404

PIN # 4677-73-5777

Location Address Property Description
2606 DUNN ST HILLSDALE LO:54 BL:E
   
Property Owner Owner's Mailing Address
LIN, BIN
PO BOX 3704
GREENVILLE NC 27836
Parcel
Buildings
Misc Improvements
Land
Deeds
Notes
Sales
Photos
Tax Bill
Map
Building Location Address
2606 DUNN ST
Building Description
01-SFR
Card   of  1
Bldg Type 01-SFR-CONST
Units 1
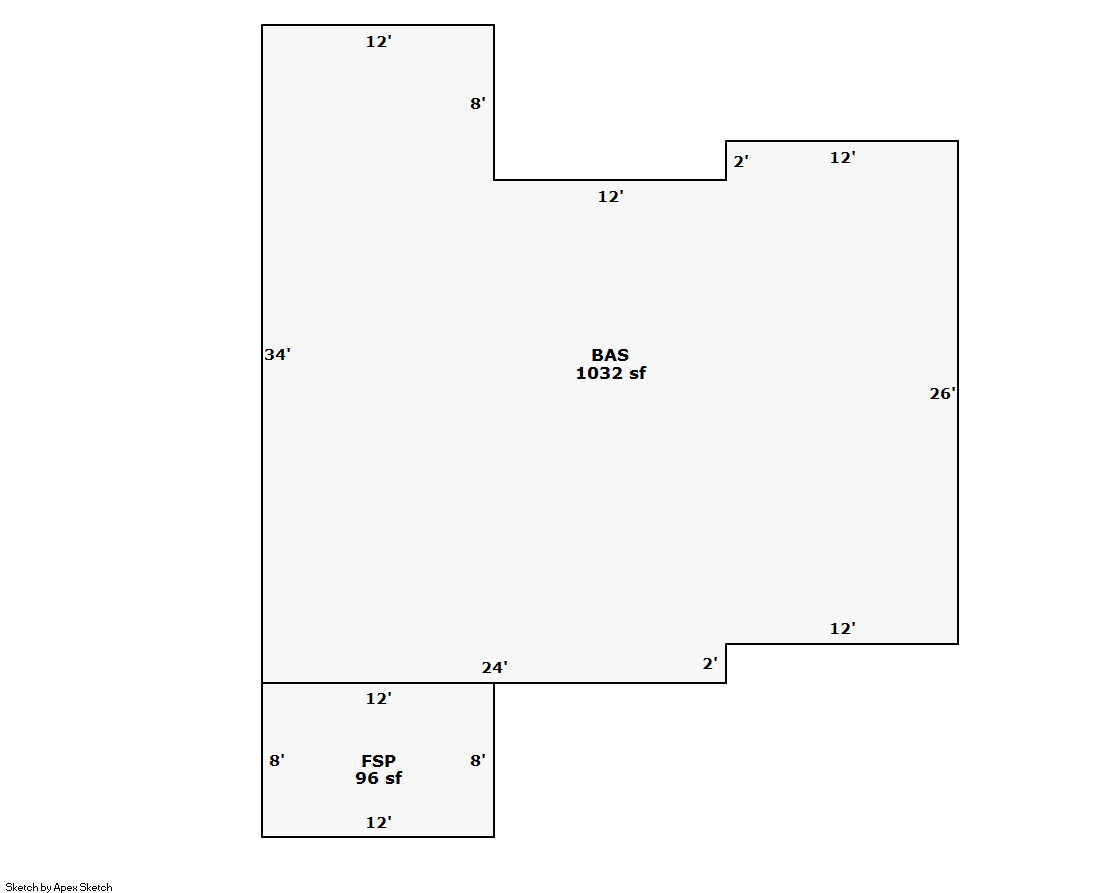
Living Area (SQFT) 1032
Number of Stories 1.00
Style 1.0-Story
Foundation CONTFOOT
Exterior Alum/Vinyl-Sid
Const Type Gable
Heating FORCE-AIR-NOT-DUCTED
Air Cond CENTRAL
Plumbing Baths (Full):   1
Baths (Half):   0
Extra Fixtures:   0
Total Plumbing Fixtures:   3 
Bedrooms 2
Main Body (SQFT) 1032
Year Built 1950
Additions 1
Effective Year 1985
Remodeled 0
Interior Adj.
Other Features
Building Total & Improvement Details

Grade C +3 103.68%
Percentage Complete 100
Total Adjusted Replacement Cost New $152,077
Physical Depreciation (% Bad) 0%
Depreciated Value $83,642
Economic Depreciation (% Bad) 0%
Functional Depreciation (% Bad) 0%
Total Depreciated Value $83,642
Market Area Factor 1.00
Building Value $83,642
Misc Improvements Value
Total Improvement Value $83,642

Assessed Land Value $12,500
   
Assessed Total Value $96,142



Addition Summary 
StoryTypeCodeArea
1.00 FINISHED SCREEN PORCH FSP 96
 
Other Improvements 
 


Building Sketch
Photograph
Building Sketch Building Photo
(Click sketch for bigger image)