Building Summary

Data last updated on: 10/18/2025     Ownership current as of: 10/17/2025     Tax Year: 2025
REID 6403

PIN # 4677-73-4601

Location Address Property Description
214 ARLINGTON CI HILLSDALE LO:7 BL:E
   
Property Owner Owner's Mailing Address
THEFORSYTHECO LLC
1309 COFFEEN AVE STE 1200
SHERIDAN WY 82801
Parcel
Buildings
Misc Improvements
Land
Deeds
Notes
Sales
Photos
Tax Bill
Map
Building Location Address
214 ARLINGTON CI
Building Description
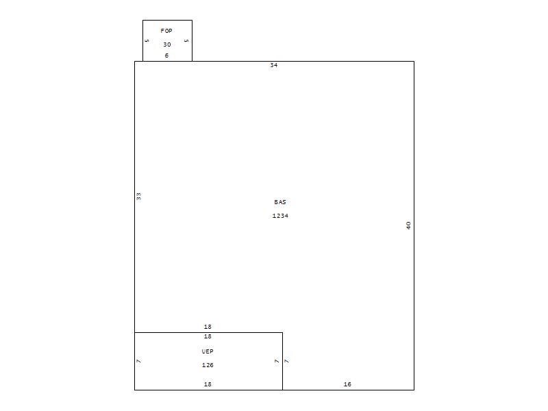
01-SFR
Card   of  1
Bldg Type 01-SFR-CONST
Units 1
Living Area (SQFT) 1234
Number of Stories 1.00
Style 1.0-Story
Foundation CONTFOOT
Exterior ASBESTOS-SHINGLE
Const Type Gable
Heating FORCE-AIR-NOT-DUCTED
Air Cond none
Plumbing Baths (Full):   1
Baths (Half):   0
Extra Fixtures:   0
Total Plumbing Fixtures:   3 
Bedrooms 3
Main Body (SQFT) 1234
Year Built 1950
Additions 2
Effective Year 1985
Remodeled 0
Interior Adj.
Other Features
Building Total & Improvement Details

Grade C +3 103.68%
Percentage Complete 100
Total Adjusted Replacement Cost New $165,245
Physical Depreciation (% Bad) 0%
Depreciated Value $90,885
Economic Depreciation (% Bad) 12%
Functional Depreciation (% Bad) 0%
Total Depreciated Value $79,979
Market Area Factor 1.00
Building Value $79,979
Misc Improvements Value $13,630
Total Improvement Value $93,609

Assessed Land Value $12,500
   
Assessed Total Value $106,109



Addition Summary 
StoryTypeCodeArea
1.00 FINISHED OPEN PORCH FOP 30
1.00 UNFINISHED ENCLOSED PORCH UEP 126
 
Other Improvements 
UnitsDescriptionItemCodeYear% BadValue
20x25 DIMENSIONS GARAGE FAIR 2014 25 13630
 


Building Sketch
Photograph
Building Sketch Building Photo
(Click sketch for bigger image)