Building Summary

Data last updated on: 10/17/2025     Ownership current as of: 10/17/2025     Tax Year: 2025
REID 62416

PIN # 4685-24-3329

Location Address Property Description
2202 SOPHIA CI CANTERBURY LO:159 PH:2 SE:6
   
Property Owner Owner's Mailing Address
POWERS, TIMOTHY
2202 SOPHIA CI
WINTERVILLE NC 28590
Parcel
Buildings
Misc Improvements
Land
Deeds
Notes
Sales
Photos
Tax Bill
Map
Building Location Address
2202
Building Description
01-SFR
Card   of  1
Bldg Type 01-SFR-CONST
Units 1
Living Area (SQFT) 2444
Number of Stories 2.50
Style Conventional
Foundation SPRDFOOT
Exterior Alum/Vinyl-Sid
Const Type Gable
Heating FORCED-AIR-DUCTED
Air Cond CENTRAL
Plumbing Baths (Full):   3
Baths (Half):   0
Extra Fixtures:   0
Total Plumbing Fixtures:   9 
Bedrooms 4
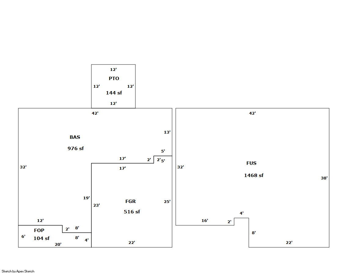
Main Body (SQFT) 976
Year Built 2019
Additions 4
Effective Year 2019
Remodeled 0
Interior Adj.
Other Features
Building Total & Improvement Details

Grade C+5 107.35%
Percentage Complete 100
Total Adjusted Replacement Cost New $336,567
Physical Depreciation (% Bad) 0%
Depreciated Value $323,104
Economic Depreciation (% Bad) 0%
Functional Depreciation (% Bad) 0%
Total Depreciated Value $323,104
Market Area Factor 1.00
Building Value $323,104
Misc Improvements Value
Total Improvement Value $323,104

Assessed Land Value $40,000
   
Assessed Total Value $363,104



Addition Summary 
StoryTypeCodeArea
1.00 FINISHED GARAGE FGR 516
1.00 FINISHED OPEN PORCH FOP 104
1.00 FINISHED UPPER STORY FUS 1468
1.00 PATIO PTO 144
 
Other Improvements 
 


Building Sketch
Photograph
Building Sketch Building Photo
(Click sketch for bigger image)