Building Summary

Data last updated on: 10/26/2025     Ownership current as of: 10/23/2025     Tax Year: 2025
REID 62412

PIN # 4665-21-1197

Location Address Property Description
912 POCOSIN RD WESTWIND LO:8 SE:2
   
Property Owner Owner's Mailing Address
MAIN, JOSEPH M
912 POCOSIN RD
WINTERVILLE NC 28590
Parcel
Buildings
Misc Improvements
Land
Deeds
Notes
Sales
Photos
Tax Bill
Map
Building Location Address
912 POCOSIN RD
Building Description
95-SFR/MOD
Card   of  1
Bldg Type 01-SFR-CONST
Units 1
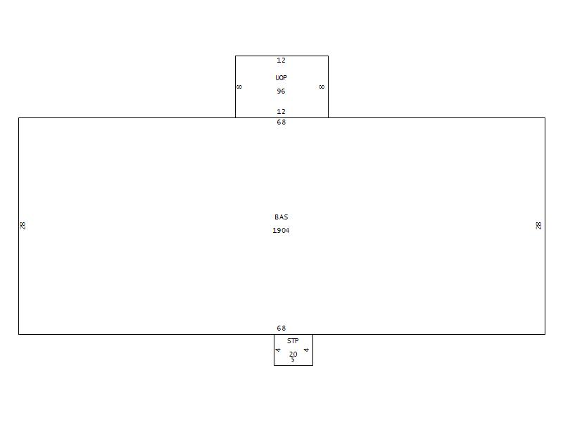
Living Area (SQFT) 1904
Number of Stories 1.00
Style 1.0-Story
Foundation CONTFOOT
Exterior Alum/Vinyl-Sid
Const Type
Heating FORCED-AIR-DUCTED
Air Cond CENTRAL
Plumbing Baths (Full):   2
Baths (Half):   0
Extra Fixtures:   0
Total Plumbing Fixtures:   6 
Bedrooms 3
Main Body (SQFT) 1904
Year Built 2007
Additions 3
Effective Year 2007
Remodeled 0
Interior Adj.
Other Features
Building Total & Improvement Details

Grade C -1 90.1%
Percentage Complete 100
Total Adjusted Replacement Cost New $234,511
Physical Depreciation (% Bad) 0%
Depreciated Value $199,334
Economic Depreciation (% Bad) 0%
Functional Depreciation (% Bad) 0%
Total Depreciated Value $199,334
Market Area Factor 1.00
Building Value $199,334
Misc Improvements Value
Total Improvement Value $199,334

Assessed Land Value $30,000
   
Assessed Total Value $229,334



Addition Summary 
StoryTypeCodeArea
1.00 STOOP STP 20
1.00 UNFINISHED OPEN PORCH UOP 96
1.00 UNFINISHED ATTIC UAT 952
 
Other Improvements 
 


Building Sketch
Photograph
Building Sketch Building Photo
(Click sketch for bigger image)