Building Summary

Data last updated on: 10/25/2025     Ownership current as of: 10/23/2025     Tax Year: 2025
REID 61888

PIN # 4659-42-5592

Location Address Property Description
680 LEXINGTON DR ROCK SPRINGS LO:11A PH:4A
   
Property Owner Owner's Mailing Address
HARRIS, TAYLOR R;HARRIS, COURTNEY J
680 LEXINGTON DR
GREENVILLE NC 27834
Parcel
Buildings
Misc Improvements
Land
Deeds
Notes
Sales
Photos
Tax Bill
Map
Building Location Address
680 LEXINGTON DR
Building Description
01-SFR
Card   of  1
Bldg Type 01-SFR-CONST
Units 1
Living Area (SQFT) 5446
Number of Stories 1.80
Style 2.0-Story
Foundation CONTFOOT
Exterior FACE-BRK
Const Type Irr/C
Heating HEAT-PUMP
Air Cond CENTRAL
Plumbing Baths (Full):   4
Baths (Half):   2
Extra Fixtures:   0
Total Plumbing Fixtures:   16 
Bedrooms 4
Main Body (SQFT) 2944
Year Built 2000
Additions 7
Effective Year 2000
Remodeled 0
Interior Adj.
Other Features
Building Total & Improvement Details

Grade B +1 138.83%
Percentage Complete 100
Total Adjusted Replacement Cost New $902,160
Physical Depreciation (% Bad) 0%
Depreciated Value $694,663
Economic Depreciation (% Bad) 0%
Functional Depreciation (% Bad) 0%
Total Depreciated Value $694,663
Market Area Factor 1.00
Building Value $694,663
Misc Improvements Value
Total Improvement Value $694,663

Assessed Land Value $235,000
   
Assessed Total Value $929,663



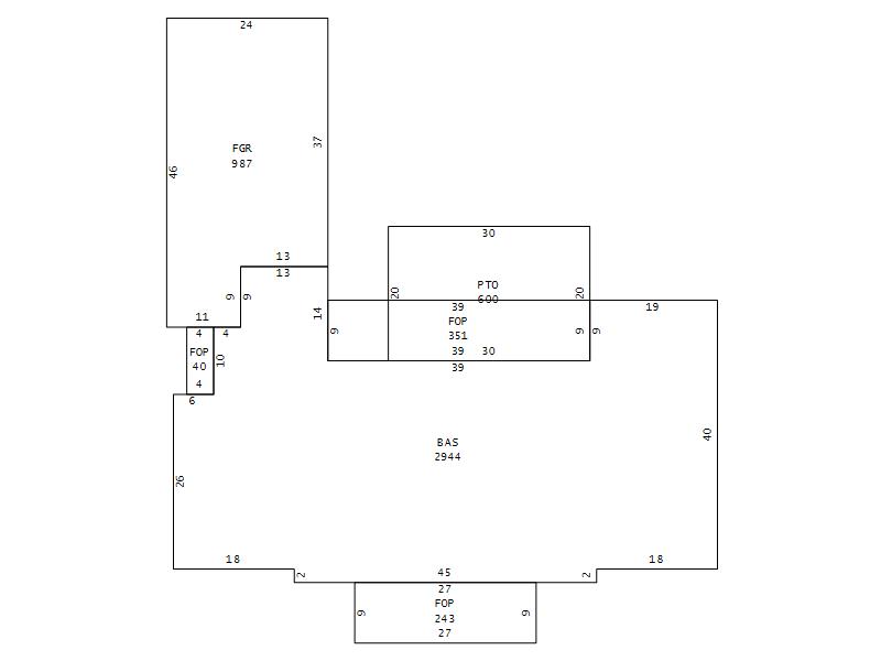
Addition Summary 
StoryTypeCodeArea
1.00 FINISHED OPEN PORCH FOP 351
1.00 FINISHED GARAGE FGR 987
1.00 FINISHED OPEN PORCH FOP 40
1.00 FINISHED OPEN PORCH FOP 243
1.00 PATIO PTO 600
1.00 Partly Finished ATTF 147
1.00 FINISHED UPPER STORY FUS 2355
 
Other Improvements 
 


Building Sketch
Photograph
Building Sketch Building Photo
(Click sketch for bigger image)