Building Summary

Data last updated on: 10/19/2025     Ownership current as of: 10/17/2025     Tax Year: 2025
REID 5773

PIN # 4785-02-3475

Location Address Property Description
261 W RAILROAD ST W J SMITH PLACE LO:4, PT.3 BL:A
   
Property Owner Owner's Mailing Address
MASON, MARION A;SWINDELL, ANTHONY HAVEN JR
261 W RAILROAD ST
BETHEL NC 27812
Parcel
Buildings
Misc Improvements
Land
Deeds
Notes
Sales
Photos
Tax Bill
Map
Building Location Address
261 W RAILROAD ST
Building Description
01-SFR
Card   of  1
Bldg Type 01-SFR-CONST
Units 1
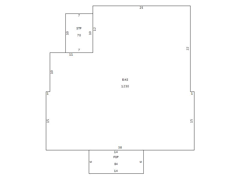
Living Area (SQFT) 1845
Number of Stories 1.50
Style 2.0-Story
Foundation CONTFOOT
Exterior Alum/Vinyl-Sid
Const Type Gable
Heating HEAT-PUMP
Air Cond CENTRAL
Plumbing Baths (Full):   1
Baths (Half):   0
Extra Fixtures:   0
Total Plumbing Fixtures:   3 
Bedrooms 3
Main Body (SQFT) 1230
Year Built 1920
Additions 3
Effective Year 1980
Remodeled 0
Interior Adj.
Other Features
Building Total & Improvement Details

Grade C 100%
Percentage Complete 100
Total Adjusted Replacement Cost New $234,511
Physical Depreciation (% Bad) 0%
Depreciated Value $107,875
Economic Depreciation (% Bad) 0%
Functional Depreciation (% Bad) 0%
Total Depreciated Value $107,875
Market Area Factor 1.00
Building Value $107,875
Misc Improvements Value
Total Improvement Value $107,875

Assessed Land Value $10,000
   
Assessed Total Value $117,875



Addition Summary 
StoryTypeCodeArea
1.00 STOOP STP 70
1.00 FINISHED OPEN PORCH FOP 84
1.00 FINISHED UPPER STORY FUS 615
 
Other Improvements 
 


Building Sketch
Photograph
Building Sketch Building Photo
(Click sketch for bigger image)