Building Summary

Data last updated on: 10/20/2025     Ownership current as of: 10/17/2025     Tax Year: 2025
REID 5752

PIN # 4677-72-0966

Location Address Property Description
2710 SUNSET AV HILLSDALE LO:12 BL:H
   
Property Owner Owner's Mailing Address
SEDGWICK, RICHARD;SEDGWICK, HELEN
2104 COLEY CREEK COURT
WILLOW SPRING NC 27592
Parcel
Buildings
Misc Improvements
Land
Deeds
Notes
Sales
Photos
Tax Bill
Map
Building Location Address
2710 SUNSET AV
Building Description
01-SFR
Card   of  1
Bldg Type 01-SFR-CONST
Units 1
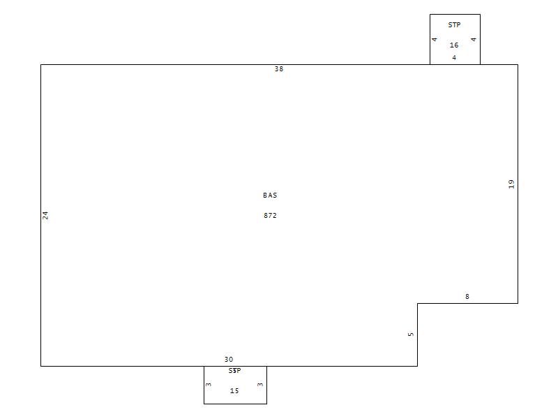
Living Area (SQFT) 872
Number of Stories 1.00
Style 1.0-Story
Foundation CONTFOOT
Exterior Alum/Vinyl-Sid
Const Type Gable
Heating HEAT-PUMP
Air Cond CENTRAL
Plumbing Baths (Full):   1
Baths (Half):   0
Extra Fixtures:   0
Total Plumbing Fixtures:   3 
Bedrooms 2
Main Body (SQFT) 872
Year Built 1950
Additions 2
Effective Year 1985
Remodeled 0
Interior Adj.
Other Features
Building Total & Improvement Details

Grade C +3 103.68%
Percentage Complete 100
Total Adjusted Replacement Cost New $135,885
Physical Depreciation (% Bad) 0%
Depreciated Value $74,737
Economic Depreciation (% Bad) 5%
Functional Depreciation (% Bad) 0%
Total Depreciated Value $71,000
Market Area Factor 1.00
Building Value $71,000
Misc Improvements Value
Total Improvement Value $71,000

Assessed Land Value $12,500
   
Assessed Total Value $83,500



Addition Summary 
StoryTypeCodeArea
1.00 STOOP STP 16
1.00 STOOP STP 15
 
Other Improvements 
 


Building Sketch
Photograph
Building Sketch Building Photo
(Click sketch for bigger image)