Building Summary

Data last updated on: 10/23/2025     Ownership current as of: 10/22/2025     Tax Year: 2025
REID 55040

PIN # 4696-53-3153

Location Address Property Description
2808 BELLS FORK RD SOUTHCREST LO:5
   
Property Owner Owner's Mailing Address
KIMURA, KOJI;KIMURA, AKURI HASHIGUCHI
2808 BELLS FORK RD
GREENVILLE NC 27858
Parcel
Buildings
Misc Improvements
Land
Deeds
Notes
Sales
Photos
Tax Bill
Map
Building Location Address
2808 BELLS FORK RD
Building Description
01-SFR
Card   of  1
Bldg Type 01-SFR-CONST
Units 1
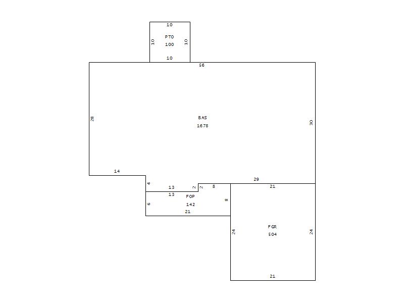
Living Area (SQFT) 2014
Number of Stories 1.20
Style 1.5-Story
Foundation CONTFOOT
Exterior Alum/Vinyl-Sid
Const Type
Heating HEAT-PUMP
Air Cond CENTRAL
Plumbing Baths (Full):   2
Baths (Half):   0
Extra Fixtures:   0
Total Plumbing Fixtures:   6 
Bedrooms 3
Main Body (SQFT) 1678
Year Built 2006
Additions 4
Effective Year 2006
Remodeled 0
Interior Adj.
Other Features
Building Total & Improvement Details

Grade B 129.41%
Percentage Complete 100
Total Adjusted Replacement Cost New $360,865
Physical Depreciation (% Bad) 0%
Depreciated Value $303,127
Economic Depreciation (% Bad) 0%
Functional Depreciation (% Bad) 0%
Total Depreciated Value $303,127
Market Area Factor 1.00
Building Value $303,127
Misc Improvements Value
Total Improvement Value $303,127

Assessed Land Value $35,000
   
Assessed Total Value $338,127



Addition Summary 
StoryTypeCodeArea
1.00 FINISHED OPEN PORCH FOP 142
1.00 FINISHED GARAGE FGR 504
1.00 PATIO PTO 100
1.00 FINISHED UPPER STORY FUS 336
 
Other Improvements 
 


Building Sketch
Photograph
Building Sketch Building Photo
(Click sketch for bigger image)