Building Summary

Data last updated on: 10/23/2025     Ownership current as of: 10/22/2025     Tax Year: 2025
REID 5442

PIN # 4696-00-5308

Location Address Property Description
4330 COUNTY HOME RD RES. COUNTY HOME RD.
   
Property Owner Owner's Mailing Address
CAO, VAN DANH
4330 COUNTY HOME RD
GREENVILLE NC 27858
Parcel
Buildings
Misc Improvements
Land
Deeds
Notes
Sales
Photos
Tax Bill
Map
Building Location Address
4330 COUNTY HOME RD
Building Description
01-SFR
Card   of  1
Bldg Type 01-SFR-CONST
Units 1
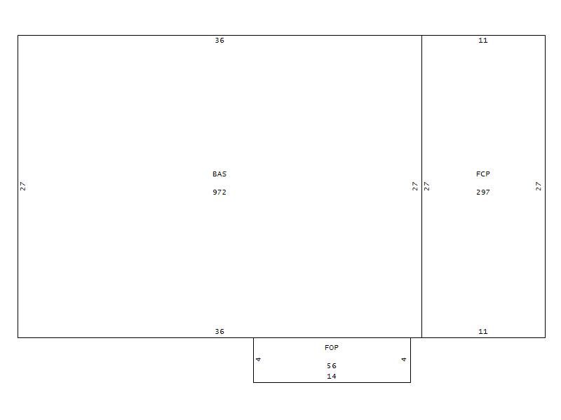
Living Area (SQFT) 972
Number of Stories 1.00
Style 1.0-Story
Foundation CONTFOOT
Exterior FACE-BRK
Const Type Gable
Heating FORCE-AIR-NOT-DUCTED
Air Cond none
Plumbing Baths (Full):   1
Baths (Half):   0
Extra Fixtures:   0
Total Plumbing Fixtures:   3 
Bedrooms 2
Main Body (SQFT) 972
Year Built 1968
Additions 2
Effective Year 1995
Remodeled 0
Interior Adj.
Other Features
Building Total & Improvement Details

Grade C 100%
Percentage Complete 100
Total Adjusted Replacement Cost New $149,178
Physical Depreciation (% Bad) 0%
Depreciated Value $105,916
Economic Depreciation (% Bad) 0%
Functional Depreciation (% Bad) 0%
Total Depreciated Value $105,916
Market Area Factor 1.00
Building Value $105,916
Misc Improvements Value $600
Total Improvement Value $106,516

Assessed Land Value $35,000
   
Assessed Total Value $141,516



Addition Summary 
StoryTypeCodeArea
1.00 FINISHED OPEN PORCH FOP 56
1.00 FINISHED CARPORT FCP 297
 
Other Improvements 
UnitsDescriptionItemCodeYear% BadValue
12x12 DIMENSIONS STORAGE/SHOP FAIR 1968 80 600
 


Building Sketch
Photograph
Building Sketch Building Photo
(Click sketch for bigger image)