Building Summary

Data last updated on: 10/31/2025     Ownership current as of: 10/30/2025     Tax Year: 2025
REID 53483

PIN # 4609-72-2447

Location Address Property Description
3482 HOG MARKET RD 1.00 J. I. OAKLEY
   
Property Owner Owner's Mailing Address
CONLAN, THOMAS LEE;LEWIS, CLAIRISSA
3482 HOG MARKET RD
FARMVILLE NC 27828
Parcel
Buildings
Misc Improvements
Land
Deeds
Notes
Sales
Photos
Tax Bill
Map
Building Location Address
3482 HOG MARKET RD
Building Description
50-RURALHMST
Card   of  1
Bldg Type 01-SFR-CONST
Units 1
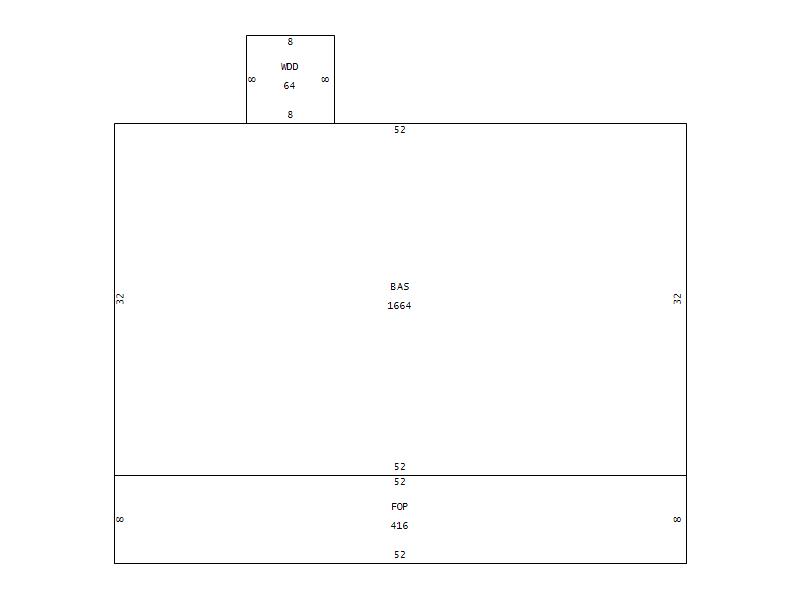
Living Area (SQFT) 1664
Number of Stories 1.00
Style 1.0-Story
Foundation CONTFOOT
Exterior Wd-shingle/log
Const Type Gable
Heating HEAT-PUMP
Air Cond CENTRAL
Plumbing Baths (Full):   2
Baths (Half):   0
Extra Fixtures:   0
Total Plumbing Fixtures:   6 
Bedrooms 3
Main Body (SQFT) 1664
Year Built 1989
Additions 2
Effective Year 1995
Remodeled 0
Interior Adj.
Other Features
Building Total & Improvement Details

Grade C 100%
Percentage Complete 100
Total Adjusted Replacement Cost New $227,025
Physical Depreciation (% Bad) 0%
Depreciated Value $161,188
Economic Depreciation (% Bad) 0%
Functional Depreciation (% Bad) 0%
Total Depreciated Value $161,188
Market Area Factor 1.00
Building Value $161,188
Misc Improvements Value $1,190
Total Improvement Value $162,378

Assessed Land Value $20,000
   
Assessed Total Value $182,378



Addition Summary 
StoryTypeCodeArea
1.00 FINISHED OPEN PORCH FOP 416
1.00 WOOD DECK WDD 64
 
Other Improvements 
UnitsDescriptionItemCodeYear% BadValue
10x10 DIMENSIONS STORAGE/SHOP POOR 2011 34 1190
 


Building Sketch
Photograph
Building Sketch Building Photo
(Click sketch for bigger image)