Building Summary

Data last updated on: 10/23/2025     Ownership current as of: 10/22/2025     Tax Year: 2025
REID 53044

PIN # 4696-34-1743

Location Address Property Description
2414 BELLS FORK RD SR 1729
   
Property Owner Owner's Mailing Address
ALVARADO, RODOLFO;ALVARADO, JAMIE
2414 BELLS FORK RD
GREENVILLE NC 27858
Parcel
Buildings
Misc Improvements
Land
Deeds
Notes
Sales
Photos
Tax Bill
Map
Building Location Address
2414 BELLS FORK RD
Building Description
50-RURALHMST
Card   of  1
Bldg Type 01-SFR-CONST
Units 1
Living Area (SQFT) 2258
Number of Stories 1.50
Style 1.5-Story
Foundation CONTFOOT
Exterior FACE-BRK
Const Type Irr/C
Heating HEAT-PUMP
Air Cond CENTRAL
Plumbing Baths (Full):   2
Baths (Half):   1
Extra Fixtures:   0
Total Plumbing Fixtures:   8 
Bedrooms 3
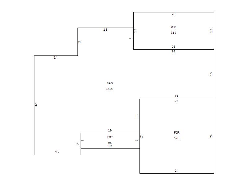
Main Body (SQFT) 1505
Year Built 1999
Additions 4
Effective Year 1999
Remodeled 0
Interior Adj.
Other Features
Building Total & Improvement Details

Grade B-5 122.06%
Percentage Complete 100
Total Adjusted Replacement Cost New $407,064
Physical Depreciation (% Bad) 0%
Depreciated Value $309,369
Economic Depreciation (% Bad) 0%
Functional Depreciation (% Bad) 0%
Total Depreciated Value $309,369
Market Area Factor 1.00
Building Value $309,369
Misc Improvements Value $20,680
Total Improvement Value $330,049

Assessed Land Value $35,000
   
Assessed Total Value $365,049



Addition Summary 
StoryTypeCodeArea
1.00 WOOD DECK WDD 312
1.00 FINISHED OPEN PORCH FOP 95
1.00 FINISHED GARAGE FGR 576
1.00 FINISHED UPPER STORY FUS 753
 
Other Improvements 
UnitsDescriptionItemCodeYear% BadValue
14x12 DIMENSIONS STORAGE/SHOP AVERAGE 2006 50 2910
34x17 DIMENSIONS Pool Concr 801-1000 2006 50 12280
1336 UNITS PATIO/APRON 2006 50 5490
 


Building Sketch
Photograph
Building Sketch Building Photo
(Click sketch for bigger image)