Building Summary

Data last updated on: 10/24/2025     Ownership current as of: 10/23/2025     Tax Year: 2025
REID 52366

PIN # 5604-09-1345

Location Address Property Description
5511 NC 43 S HWY 43
   
Property Owner Owner's Mailing Address
JSD REAL ESTATE LLC
740 SE GREENVILLE BLVD STE 400 163
GREENVILLE NC 27858
Parcel
Buildings
Misc Improvements
Land
Deeds
Notes
Sales
Photos
Tax Bill
Map
Building Location Address
5511 NC 43 S
Building Description
50-RURALHMST
Card   of  1
Bldg Type 01-SFR-CONST
Units 1
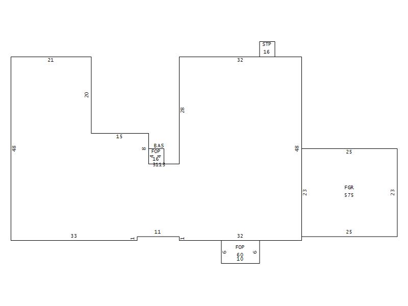
Living Area (SQFT) 3113
Number of Stories 1.00
Style 1.0-Story
Foundation CONTFOOT
Exterior FACE-BRK
Const Type Gable
Heating HEAT-PUMP
Air Cond CENTRAL
Plumbing Baths (Full):   3
Baths (Half):   0
Extra Fixtures:   0
Total Plumbing Fixtures:   9 
Bedrooms 3
Main Body (SQFT) 3113
Year Built 1933
Additions 4
Effective Year 2005
Remodeled 0
Interior Adj.
Other Features
Building Total & Improvement Details

Grade C 100%
Percentage Complete 100
Total Adjusted Replacement Cost New $413,126
Physical Depreciation (% Bad) 0%
Depreciated Value $342,895
Economic Depreciation (% Bad) 0%
Functional Depreciation (% Bad) 0%
Total Depreciated Value $342,895
Market Area Factor 1.00
Building Value $342,895
Misc Improvements Value $2,380
Total Improvement Value $345,275

Assessed Land Value $39,300
   
Assessed Total Value $384,575



Addition Summary 
StoryTypeCodeArea
1.00 FINISHED OPEN PORCH FOP 60
1.00 STOOP STP 16
1.00 FINISHED GARAGE FGR 575
1.00 FINISHED OPEN PORCH FOP 64
 
Other Improvements 
UnitsDescriptionItemCodeYear% BadValue
12x26 DIMENSIONS STORAGE/SHOP AVERAGE 1950 80 2170
20x52 DIMENSIONS PACK BARN 1950 80 210
 


Building Sketch
Photograph
Building Sketch Building Photo
(Click sketch for bigger image)