Building Summary

Data last updated on: 10/24/2025     Ownership current as of: 10/23/2025     Tax Year: 2025
REID 4994

PIN # 4695-87-3698

Location Address Property Description
4848 NC 43 S RES. HWY 43
   
Property Owner Owner's Mailing Address
GARRETT, SAWYER
4848 NC HIGHWAY 43 S
GREENVILLE NC 27858
Parcel
Buildings
Misc Improvements
Land
Deeds
Notes
Sales
Photos
Tax Bill
Map
Building Location Address
4848 NC 43 S
Building Description
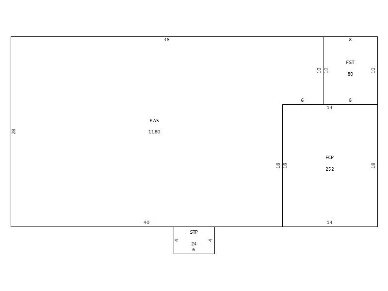
01-SFR
Card   of  1
Bldg Type 01-SFR-CONST
Units 1
Living Area (SQFT) 1180
Number of Stories 1.00
Style 1.0-Story
Foundation CONTFOOT
Exterior FACE-BRK
Const Type Gable
Heating FORCED-AIR-DUCTED
Air Cond CENTRAL
Plumbing Baths (Full):   1
Baths (Half):   1
Extra Fixtures:   0
Total Plumbing Fixtures:   5 
Bedrooms 3
Main Body (SQFT) 1180
Year Built 1969
Additions 3
Effective Year 1995
Remodeled 0
Interior Adj.
Other Features
Building Total & Improvement Details

Grade C 100%
Percentage Complete 100
Total Adjusted Replacement Cost New $189,205
Physical Depreciation (% Bad) 0%
Depreciated Value $134,336
Economic Depreciation (% Bad) 0%
Functional Depreciation (% Bad) 0%
Total Depreciated Value $134,336
Market Area Factor 1.00
Building Value $134,336
Misc Improvements Value $2,210
Total Improvement Value $136,546

Assessed Land Value $37,100
   
Assessed Total Value $173,646



Addition Summary 
StoryTypeCodeArea
1.00 STOOP STP 24
1.00 FINISHED CARPORT FCP 252
1.00 FINISHED STORAGE FST 80
 
Other Improvements 
UnitsDescriptionItemCodeYear% BadValue
12x18 DIMENSIONS STORAGE/SHOP AVERAGE 1901 80 1500
20x18 DIMENSIONS CARPORT POOR 2004 56 710
 


Building Sketch
Photograph
Building Sketch Building Photo
(Click sketch for bigger image)