Building Summary

Data last updated on: 10/25/2025     Ownership current as of: 10/23/2025     Tax Year: 2025
REID 49114

PIN # 4659-51-2551

Location Address Property Description
604 WHITE HORSE DR ROCK SPRINGS LO:45 PH:2 BL:A
   
Property Owner Owner's Mailing Address
HOO FATT, DANIELLE TAMARA TRUSTEE;EVERWELL TRUST
604 WHITE HORSE DR
GREENVILLE NC 27834
Parcel
Buildings
Misc Improvements
Land
Deeds
Notes
Sales
Photos
Tax Bill
Map
Building Location Address
604 WHITE HORSE DR
Building Description
01-SFR
Card   of  2
Bldg Type 01-SFR-CONST
Units 1
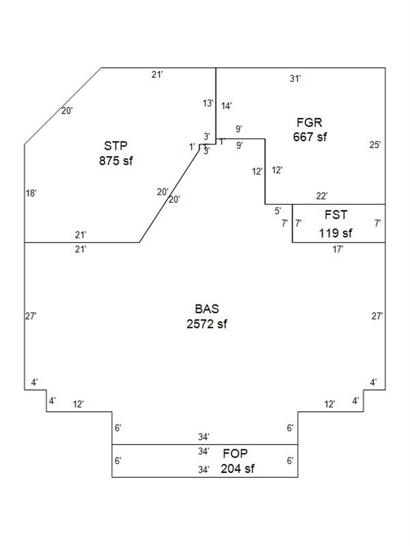
Living Area (SQFT) 4338
Number of Stories 1.80
Style 2.0-Story
Foundation CONTFOOT
Exterior Alum/Vinyl-Sid
Const Type Irr/C
Heating HEAT-PUMP
Air Cond CENTRAL
Plumbing Baths (Full):   3
Baths (Half):   1
Extra Fixtures:   0
Total Plumbing Fixtures:   11 
Bedrooms 4
Main Body (SQFT) 2572
Year Built 1992
Additions 5
Effective Year 2000
Remodeled 0
Interior Adj.
Other Features
Building Total & Improvement Details

Grade B 129.41%
Percentage Complete 100
Total Adjusted Replacement Cost New $676,838
Physical Depreciation (% Bad) 0%
Depreciated Value $521,165
Economic Depreciation (% Bad) 0%
Functional Depreciation (% Bad) 0%
Total Depreciated Value $521,165
Market Area Factor 1.00
Building Value $521,165
Misc Improvements Value $2,210
Total Improvement Value $523,375

Assessed Land Value $167,750
   
Assessed Total Value $815,316



Addition Summary 
StoryTypeCodeArea
1.00 FINISHED GARAGE FGR 667
1.00 FINISHED OPEN PORCH FOP 204
1.00 FINISHED STORAGE FST 119
1.00 STOOP STP 874
1.00 FINISHED UPPER STORY FUS 1766
 
Other Improvements 
UnitsDescriptionItemCodeYear% BadValue
1 UNITS Fireplace 2008 43 2210
 


Building Sketch
Photograph
Building Sketch Building Photo
(Click sketch for bigger image)