Building Summary

Data last updated on: 10/22/2025     Ownership current as of: 10/21/2025     Tax Year: 2025
REID 48238

PIN # 5637-98-6350

Location Address Property Description
4430 PRIVACY LN MARY MARGARET STARK 1989
   
Property Owner Owner's Mailing Address
GAMBOA, ANDRES F;GAMBOA, BRANDY C
4430 PRIVACY LN
WASHINGTON NC 27889
Parcel
Buildings
Misc Improvements
Land
Deeds
Notes
Sales
Photos
Tax Bill
Map
Building Location Address
4430 PRIVACY LN
Building Description
50-RURALHMST
Card   of  1
Bldg Type 01-SFR-CONST
Units 1
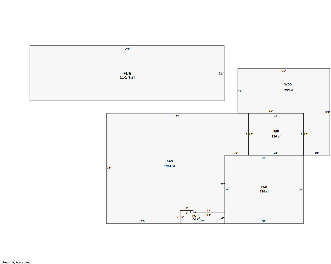
Living Area (SQFT) 3515
Number of Stories 1.80
Style 2.0-Story
Foundation CONTFOOT
Exterior Alum/Vinyl-Sid
Const Type Gable
Heating HEAT-PUMP
Air Cond CENTRAL
Plumbing Baths (Full):   4
Baths (Half):   1
Extra Fixtures:   0
Total Plumbing Fixtures:   14 
Bedrooms 3
Main Body (SQFT) 1961
Year Built 1996
Additions 5
Effective Year 2000
Remodeled 0
Interior Adj.
Other Features
Building Total & Improvement Details

Grade C 100%
Percentage Complete 100
Total Adjusted Replacement Cost New $466,676
Physical Depreciation (% Bad) 0%
Depreciated Value $359,341
Economic Depreciation (% Bad) 0%
Functional Depreciation (% Bad) 0%
Total Depreciated Value $359,341
Market Area Factor 1.00
Building Value $359,341
Misc Improvements Value $27,150
Total Improvement Value $386,491

Assessed Land Value $27,089
   
Assessed Total Value $413,580



Addition Summary 
StoryTypeCodeArea
1.00 FINISHED OPEN PORCH FOP 73
1.00 FINISHED GARAGE FGR 780
1.00 FINISHED SCREEN PORCH FSP 336
1.00 WOOD DECK WDD 755
1.00 FINISHED UPPER STORY FUS 1554
 
Other Improvements 
UnitsDescriptionItemCodeYear% BadValue
50x30 DIMENSIONS GARAGE GOOD 2000 68 27150
 


Building Sketch
Photograph
Building Sketch Building Photo
(Click sketch for bigger image)