Building Summary

Data last updated on: 10/20/2025     Ownership current as of: 10/17/2025     Tax Year: 2025
REID 47541

PIN # 4686-96-7520

Location Address Property Description
3282 CHARLES BV TARA OFFICE COMPLEX LO:1A
   
Property Owner Owner's Mailing Address
WNR PROPERTIES LLC
3282 CHARLES BLVD
GREENVILLE NC 27858
Parcel
Buildings
Misc Improvements
Land
Deeds
Notes
Sales
Photos
Tax Bill
Map
Building Location Address
3282 CHARLES BV
Card   of  1        Section   of  1
Building Details

Building Name
Primary Occupancy Type 04-OFF-CONST
Primary Occupancy 19-MEDBLDG
Primary Class C
Primary Quality Avg
Year Built 2004
Effective Year 2004
Physical Depreciation (Rating) DEPRECIATION
Physical Depreciation (% Bad) 25.00%
Economic Depreciation (% Bad) 0%
Functional Depreciation (% Bad) 0%
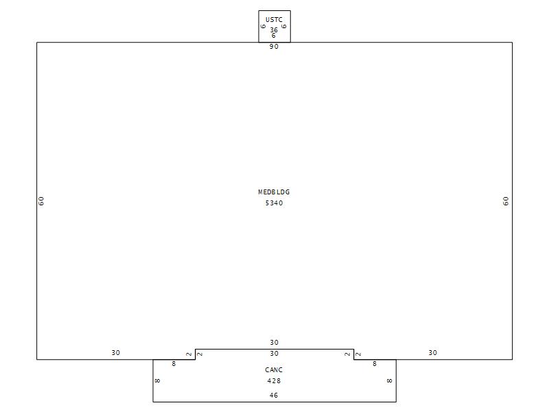
Gross Leasable Area (SQFT) 5340
Remodeled Year
Total Stories 1

Section Details

Occupancy Type 04-OFF-CONST


Air Conditioning CENTRAL
EXTRA FIXTURES 6
Class C
Depreciation 25%
Depreciation DEPRECIATION
Foundation SPRDFOOT
Heat HEAT-PUMP
Interior Finish DRYWALL/SHEETROCK
Occupancy 19-MEDBLDG
Quality Avg
Exterior Walls FACE-BRK
Building Total & Improvement Details

Total Adjusted Replacement Cost New $977,785
Physical Depreciation (% Bad) 25.00%
Depreciated Value $733,339
Economic Depreciation (% Bad) 0%
Functional Depreciation (% Bad) 0%
Total Depreciated Value $733,339
Market Area Factor 1.00
Building Value $733,339
Misc Improvements Value $20,690
Total Improvement Value $754,029

Assessed Land Value $174,545
   
Assessed Total Value $928,574


Addition Summary 
StoryTypeCodeArea
1.00 UNFINISHED STORAGE USTC 36
1.00 CANOPY CANC 428
1.00 Partly Unfinished ATTF 1335
 
Other Improvements 
UnitsDescriptionItemCodeYear% BadValue
10812 UNITS PAVING ASPHALT 2005 53 20330
40 UNITS Wall Brick 12 inch 2005 53 360
 


Building Sketch
Photograph
Building Sketch Building Photo
(Click sketch for bigger image)