Building Summary

Data last updated on: 10/19/2025     Ownership current as of: 10/17/2025     Tax Year: 2025
REID 4692

PIN # 4785-03-6954

Location Address Property Description
227 NELSON ST L L CHERRY ESTATES LO:16
   
Property Owner Owner's Mailing Address
MATEO, BRITTIANY
227 NELSON ST
BETHEL NC 27812
Parcel
Buildings
Misc Improvements
Land
Deeds
Notes
Sales
Photos
Tax Bill
Map
Building Location Address
227 NELSON ST
Building Description
01-SFR
Card   of  1
Bldg Type 01-SFR-CONST
Units 1
Living Area (SQFT) 1131
Number of Stories 1.00
Style 1.0-Story
Foundation CONTFOOT
Exterior FACE-BRK
Const Type Gable
Heating FORCED-AIR-DUCTED
Air Cond CENTRAL
Plumbing Baths (Full):   1
Baths (Half):   0
Extra Fixtures:   0
Total Plumbing Fixtures:   3 
Bedrooms 3
Main Body (SQFT) 1131
Year Built 1960
Additions 3
Effective Year 1990
Remodeled 0
Interior Adj.
Other Features
Building Total & Improvement Details

Grade C 100%
Percentage Complete 100
Total Adjusted Replacement Cost New $182,154
Physical Depreciation (% Bad) 0%
Depreciated Value $114,757
Economic Depreciation (% Bad) 0%
Functional Depreciation (% Bad) 0%
Total Depreciated Value $114,757
Market Area Factor 1.00
Building Value $114,757
Misc Improvements Value
Total Improvement Value $114,757

Assessed Land Value $15,000
   
Assessed Total Value $129,757



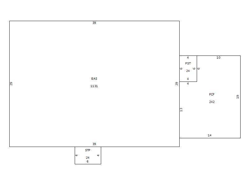
Addition Summary 
StoryTypeCodeArea
1.00 STOOP STP 24
1.00 FINISHED CARPORT FCP 242
1.00 FINISHED STORAGE FST 24
 
Other Improvements 
 


Building Sketch
Photograph
Building Sketch Building Photo
(Click sketch for bigger image)