Building Summary

Data last updated on: 10/23/2025     Ownership current as of: 10/22/2025     Tax Year: 2025
REID 4454

PIN # 4696-23-5749

Location Address Property Description
4051 CHARLES BV NC 43 SOUTH
   
Property Owner Owner's Mailing Address
DIRTY PIRATE PROPERTIES LLC
4051 SOUTH CHARLES BLVD
GREENVILLE NC 27858
Parcel
Buildings
Misc Improvements
Land
Deeds
Notes
Sales
Photos
Tax Bill
Map
Building Location Address
4051 CHARLES BV
Building Description
01-SFR
Card   of  1
Bldg Type 01-SFR-CONST
Units 1
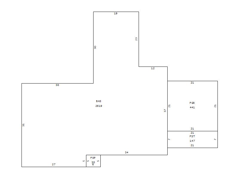
Living Area (SQFT) 2619
Number of Stories 1.00
Style 1.0-Story
Foundation CONTFOOT
Exterior FACE-BRK
Const Type Hip
Heating FORCED-AIR-DUCTED
Air Cond CENTRAL
Plumbing Baths (Full):   2
Baths (Half):   0
Extra Fixtures:   0
Total Plumbing Fixtures:   6 
Bedrooms 3
Main Body (SQFT) 2619
Year Built 1966
Additions 3
Effective Year 1995
Remodeled 0
Interior Adj.
Other Features
Building Total & Improvement Details

Grade C 100%
Percentage Complete 100
Total Adjusted Replacement Cost New $360,146
Physical Depreciation (% Bad) 0%
Depreciated Value $255,704
Economic Depreciation (% Bad) 0%
Functional Depreciation (% Bad) 0%
Total Depreciated Value $255,704
Market Area Factor 1.00
Building Value $255,704
Misc Improvements Value $10,250
Total Improvement Value $265,954

Assessed Land Value $35,000
   
Assessed Total Value $300,954



Addition Summary 
StoryTypeCodeArea
1.00 FINISHED OPEN PORCH FOP 30
1.00 FINISHED STORAGE FST 147
1.00 FINISHED GARAGE FGR 441
 
Other Improvements 
UnitsDescriptionItemCodeYear% BadValue
30x40 DIMENSIONS GARAGE AVERAGE 1988 80 10250
 


Building Sketch
Photograph
Building Sketch Building Photo
(Click sketch for bigger image)