Building Summary

Data last updated on: 10/17/2025     Ownership current as of: 10/17/2025     Tax Year: 2025
REID 40698

PIN # 4697-14-6752

Location Address Property Description
100 E14 DAVID DR 3-14E TWIN OAKS
   
Property Owner Owner's Mailing Address
LMW ENTERPRISES LLC
211 CHOWAN RD
GREENVILLE NC 27858
Parcel
Buildings
Misc Improvements
Land
Deeds
Notes
Sales
Photos
Tax Bill
Map
Building Location Address
100 DAVID DR
Building Description
04-COND/TWN/DUP-SFR
Card   of  1
Bldg Type 03-MFR-CONST
Units 1
Living Area (SQFT) 1470
Number of Stories 2.00
Style Condo
Foundation SPRDFOOT
Exterior FACE-BRK
Const Type Gable
Heating HEAT-PUMP
Air Cond CENTRAL
Plumbing Baths (Full):   2
Baths (Half):   1
Extra Fixtures:   0
Total Plumbing Fixtures:   8 
Bedrooms 3
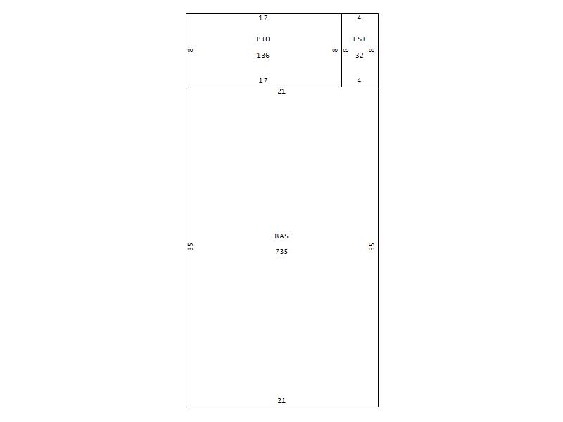
Main Body (SQFT) 735
Year Built 1984
Additions 3
Effective Year 1992
Remodeled 0
Interior Adj.
Other Features
Building Total & Improvement Details

Grade C-5 93.4%
Percentage Complete 100
Total Adjusted Replacement Cost New $178,333
Physical Depreciation (% Bad) 0%
Depreciated Value $107,000
Economic Depreciation (% Bad) 0%
Functional Depreciation (% Bad) 0%
Total Depreciated Value $107,000
Market Area Factor 1.00
Building Value $107,000
Misc Improvements Value
Total Improvement Value $107,000

Assessed Land Value $20,000
   
Assessed Total Value $127,000



Addition Summary 
StoryTypeCodeArea
1.00 FINISHED STORAGE FST 32
1.00 PATIO PTO 136
1.00 FINISHED UPPER STORY FUS 735
 
Other Improvements 
 


Building Sketch
Photograph
Building Sketch Building Photo
(Click sketch for bigger image)