Building Summary

Data last updated on: 10/24/2025     Ownership current as of: 10/23/2025     Tax Year: 2025
REID 40650

PIN # 4695-84-9418

Location Address Property Description
1914 MALLARD RD OFF NC 43
   
Property Owner Owner's Mailing Address
LAUGHMAN, MICHAEL F TRUSTEE;LFT TRUST
1914 MALLARD RD
GREENVILLE NC 27858
Parcel
Buildings
Misc Improvements
Land
Deeds
Notes
Sales
Photos
Tax Bill
Map
Building Location Address
1914 MALLARD RD
Building Description
01-SFR
Card   of  1
Bldg Type 01-SFR-CONST
Units 1
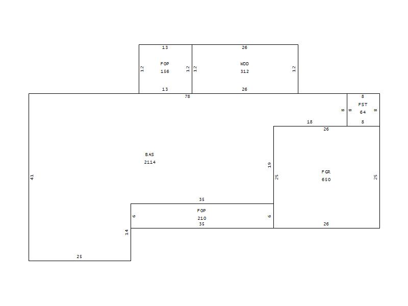
Living Area (SQFT) 2114
Number of Stories 1.00
Style 1.0-Story
Foundation CONTFOOT
Exterior FACE-BRK
Const Type Gable
Heating HEAT-PUMP
Air Cond CENTRAL
Plumbing Baths (Full):   2
Baths (Half):   0
Extra Fixtures:   0
Total Plumbing Fixtures:   6 
Bedrooms 3
Main Body (SQFT) 2114
Year Built 1990
Additions 5
Effective Year 1995
Remodeled 0
Interior Adj.
Other Features
Building Total & Improvement Details

Grade C 100%
Percentage Complete 100
Total Adjusted Replacement Cost New $327,987
Physical Depreciation (% Bad) 0%
Depreciated Value $232,871
Economic Depreciation (% Bad) 0%
Functional Depreciation (% Bad) 0%
Total Depreciated Value $232,871
Market Area Factor 1.00
Building Value $232,871
Misc Improvements Value
Total Improvement Value $232,871

Assessed Land Value $41,400
   
Assessed Total Value $274,271



Addition Summary 
StoryTypeCodeArea
1.00 WOOD DECK WDD 312
1.00 FINISHED OPEN PORCH FOP 156
1.00 FINISHED GARAGE FGR 650
1.00 FINISHED STORAGE FST 64
1.00 FINISHED OPEN PORCH FOP 210
 
Other Improvements 
 


Building Sketch
Photograph
Building Sketch Building Photo
(Click sketch for bigger image)