Building Summary

Data last updated on: 10/17/2025     Ownership current as of: 10/17/2025     Tax Year: 2025
REID 40033

PIN # 4697-14-8348

Location Address Property Description
102 21F DAVID DR TWIN OAKES, COURT F UN:21 BU:3
   
Property Owner Owner's Mailing Address
COX, JERRY R JR
200 COMMERCE ST
GREENVILLE NC 27858
Parcel
Buildings
Misc Improvements
Land
Deeds
Notes
Sales
Photos
Tax Bill
Map
Building Location Address
102 DAVID DR
Building Description
04-COND/TWN/DUP-SFR
Card   of  1
Bldg Type 03-MFR-CONST
Units 1
Living Area (SQFT) 1386
Number of Stories 2.00
Style Condo
Foundation SPRDFOOT
Exterior BRICK/VINYL
Const Type Gable
Heating HEAT-PUMP
Air Cond CENTRAL
Plumbing Baths (Full):   2
Baths (Half):   1
Extra Fixtures:   0
Total Plumbing Fixtures:   8 
Bedrooms 3
Main Body (SQFT) 693
Year Built 1983
Additions 3
Effective Year 1992
Remodeled 0
Interior Adj.
Other Features
Building Total & Improvement Details

Grade C-5 93.4%
Percentage Complete 100
Total Adjusted Replacement Cost New $162,519
Physical Depreciation (% Bad) 0%
Depreciated Value $97,511
Economic Depreciation (% Bad) 0%
Functional Depreciation (% Bad) 0%
Total Depreciated Value $97,511
Market Area Factor 1.00
Building Value $97,511
Misc Improvements Value
Total Improvement Value $97,511

Assessed Land Value $20,000
   
Assessed Total Value $117,511



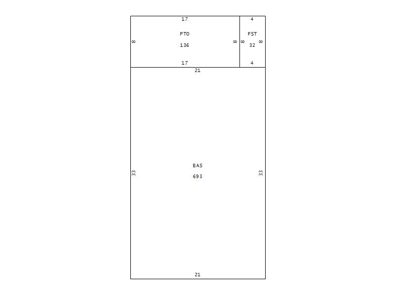
Addition Summary 
StoryTypeCodeArea
1.00 PATIO PTO 136
1.00 FINISHED STORAGE FST 32
1.00 FINISHED UPPER STORY FUS 693
 
Other Improvements 
 


Building Sketch
Photograph
Building Sketch Building Photo
(Click sketch for bigger image)